Sunny Logo
sunny
Sign In
Sign Up
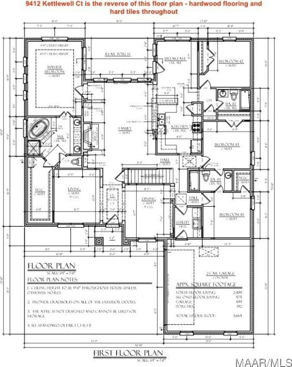
Photos for 9412 KETTLEWELL Court
Close
Sign In
Sign Up