5340 Olmeda Ave
5340 Olmeda Ave
See all photos

5340 Olmeda Ave

5340 Olmeda Avenue, Atascadero, CA 93422

  • 2 bed – 3 bed

Complete your preferences to get a proper evaluation.

Set Preferences

Property location

5340 Olmeda Avenue, Atascadero, CA 93422

Pricing and availability

Last updated about 3 hours ago
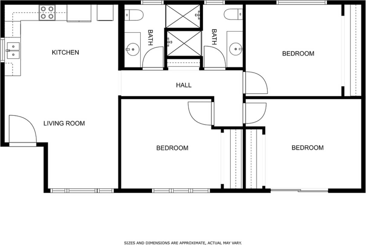
  • Brand-New Modern 3-Bedroom Apartment Home in Atascadero
    • 3 bed
    • ·
      2 bath
    • ·
      1000 sqft
    $2,900+
    1
    Starting at
    Unit available
    • Unit 3 beds, 2 baths, $2900

      Available now

      12 months lease
      Base rent
      $2,900+ mo

Amenities

    Property details

    Deposit
    1500.0
    Income requirement
    Must have 3x the rent in total household income (before taxes)

    Contact the property

    (805) 420-7756