Bart Springs
2 photos
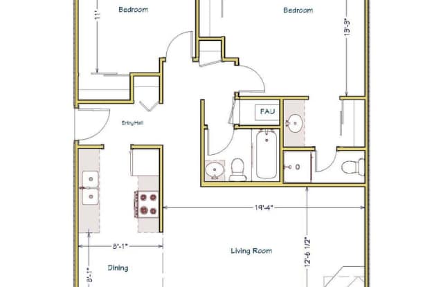
  • 2 bed
Base rent from $0+ mo

Bart Springs

29033 Dixon Street, Hayward, CA 94544
(510) 694-1669

Complete your preferences to get a proper evaluation.

Set Preferences

Property location

29033 Dixon Street, Hayward, CA 94544

Pricing and availability

Last updated 18 days ago

No units available

Amenities

  • On-site laundry
  • Patio / balcony
  • Dishwasher
  • Walk in closets
  • Pool
  • Courtyard

Property details

Beautifully landscaped with care to the property and its grounds, our apartment homes are clean, sharp, and include prompt customer service, on-Site Management, walk to B.A.R.T., and gated access. Move-in to our apartments where pride of ownership and customer service is a passion for you to enjoy! Contact us now to consider us your next apartment home!

Deposit
0.00
Income requirement
Must have 3x the rent in total household income (before taxes)

Contact the property

(510) 694-1669