Sunny Logo
sunny
Sign In
Sign Up
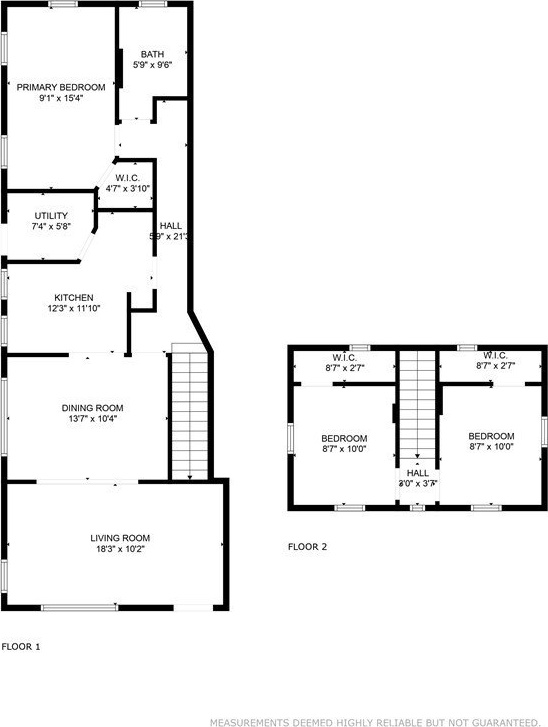
Photos for 1858 W 54th Street
Close
Sign In
Sign Up