Sunny Logo
sunny
Sign In
Sign Up
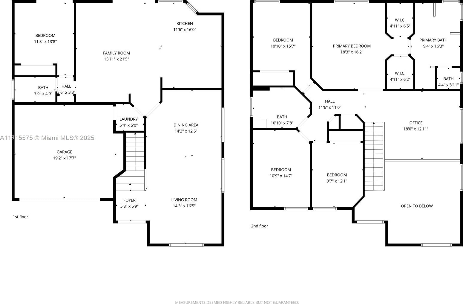
Photos for 11243 NW 58th Ter
Close
Sign In
Sign Up