Sunny Logo
sunny
Sign In
Sign Up
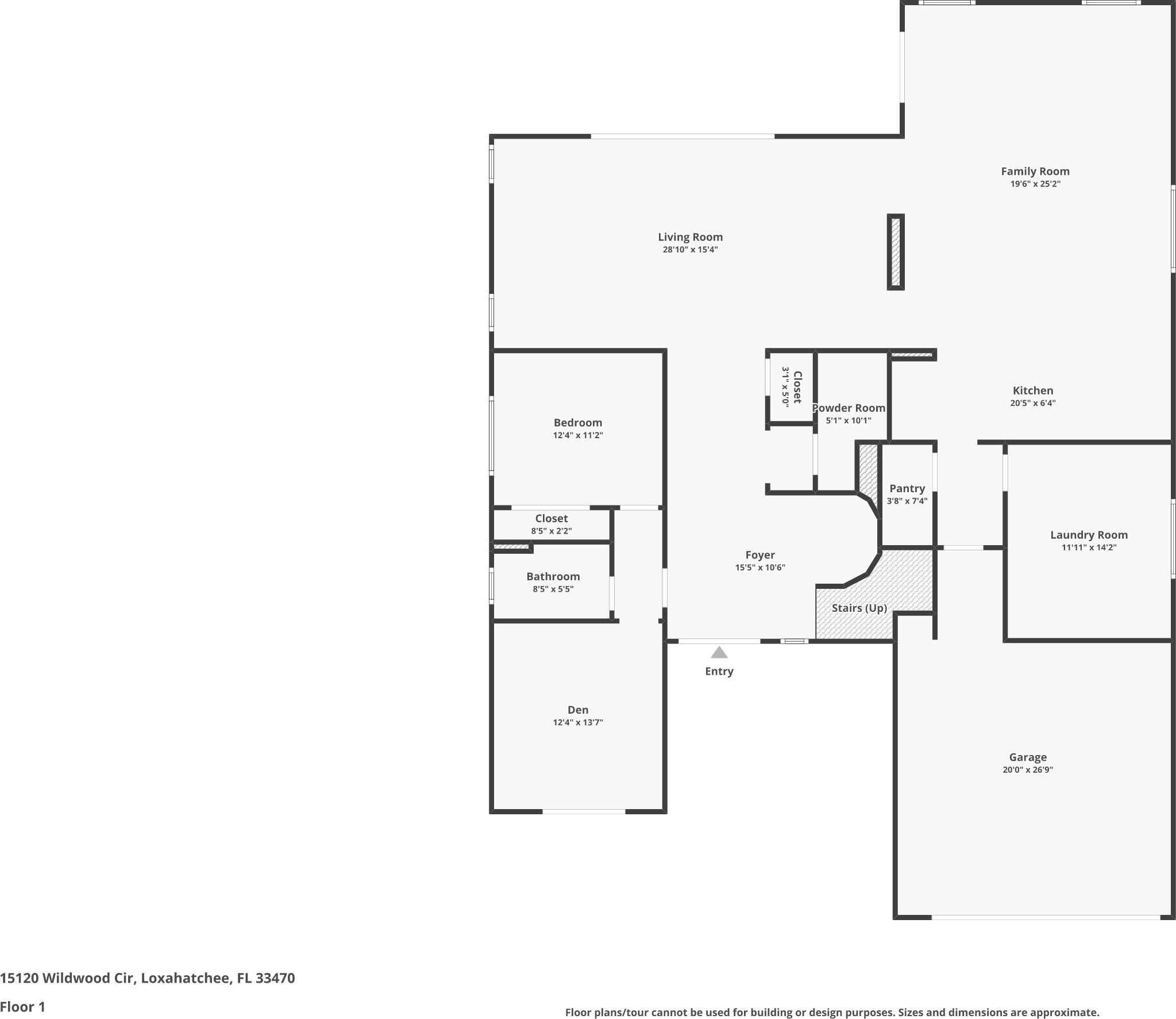
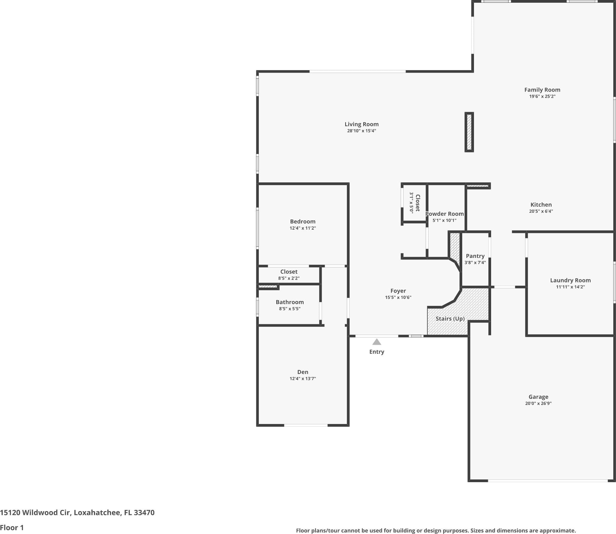
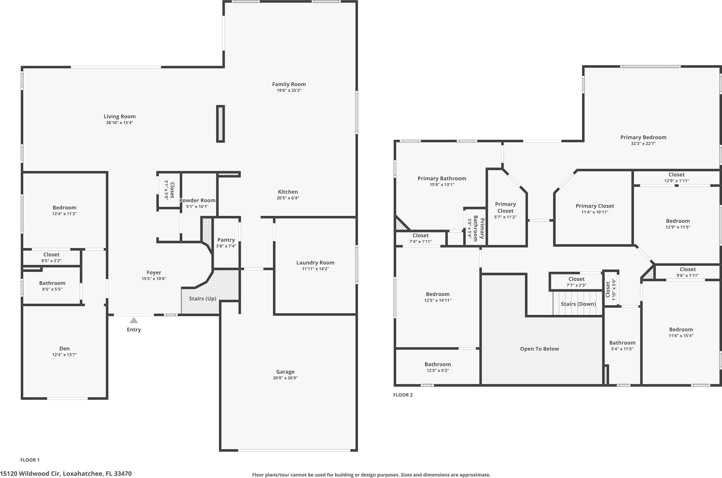
Photos for 15120 Wildwood Circle
Close
Sign In
Sign Up