Sunny Logo
sunny
Sign In
Sign Up
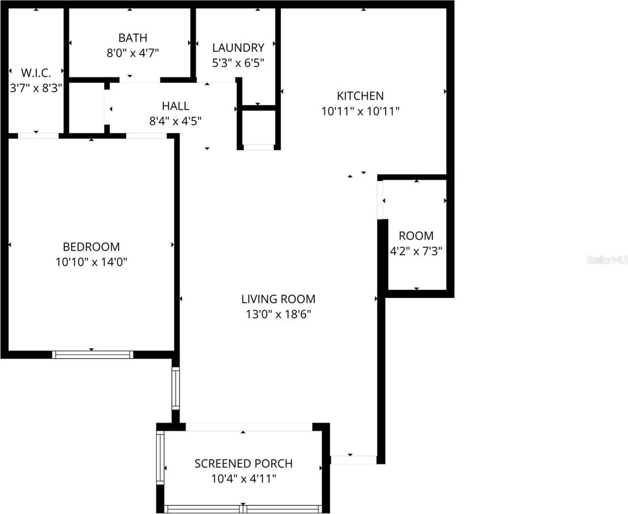
Photos for 5709 BAYWATER DRIVE
Close
Sign In
Sign Up