Sunny Logo
sunny
Sign In
Sign Up
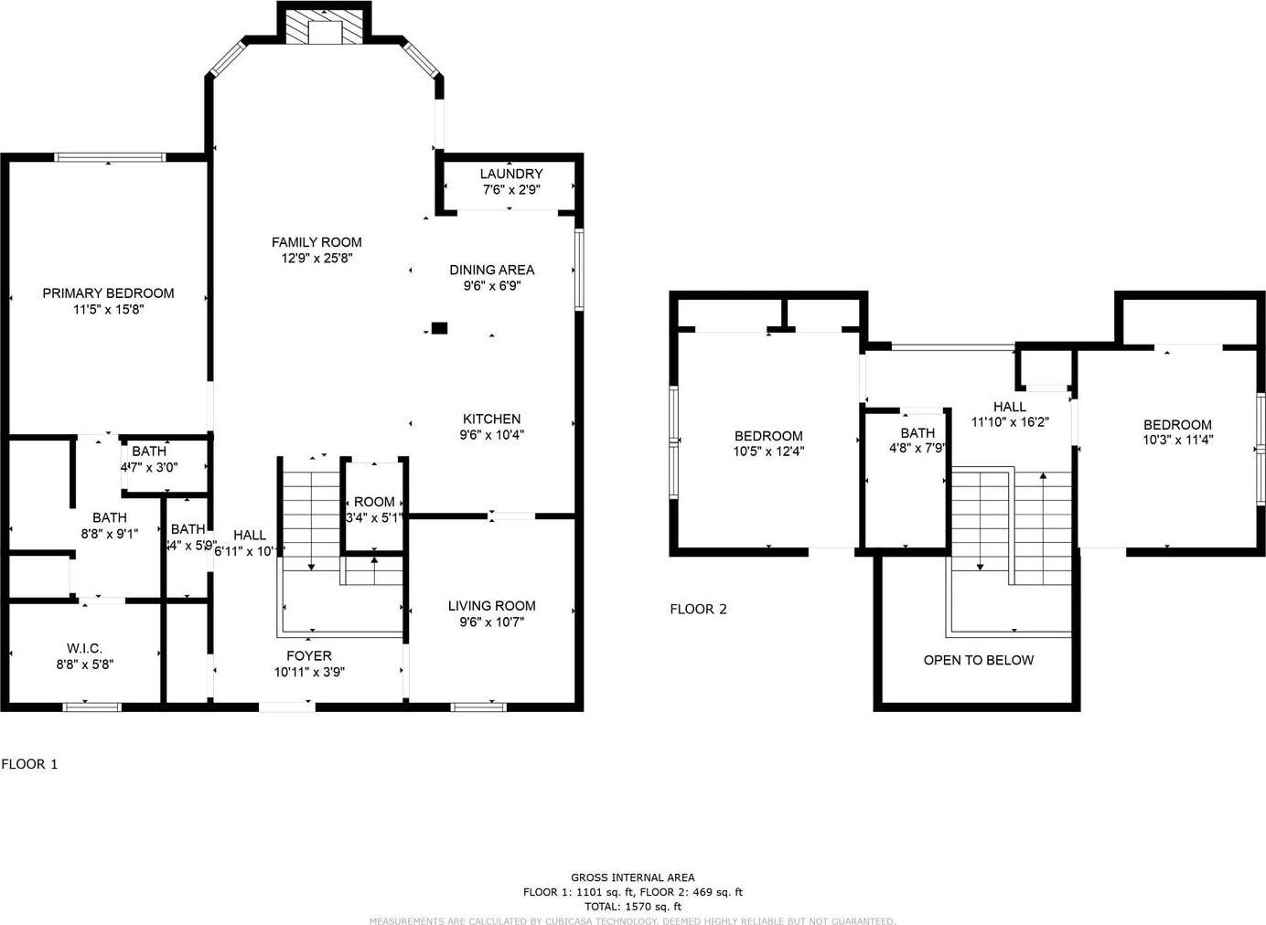
Photos for Three Bedroom Near Downtown
Go back
Sign In
Sign Up
Base rent from
$2,300+ mo
Three Bedroom Near Downtown