Sunny Logo
sunny
Sign In
Sign Up
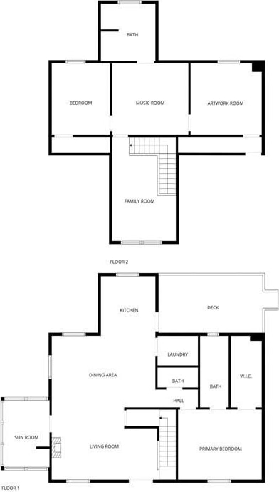
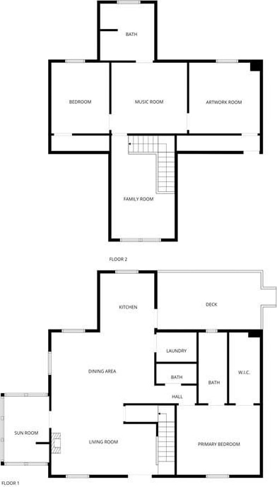
Photos for 1552 Belmont Avenue SW
Go back
Sign In
Sign Up
Base rent from
$0+ mo
1552 Belmont Avenue SW