Sunny Logo
sunny
Sign In
Sign Up
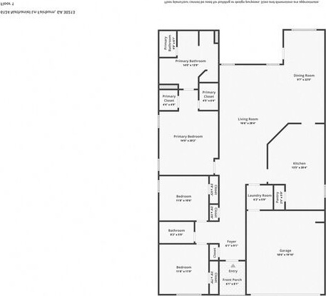
Photos for 6124 Nathaniel Lane
Close
Sign In
Sign Up