Sunny Logo
sunny
Sign In
Sign Up
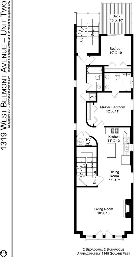
Photos for 1319 W Belmont
Close
Sign In
Sign Up
Base rent from
$0+ mo
1319 W Belmont