5326-5336 S. Greenwood Avenue
5326-5336 S. Greenwood Avenue
See all photos

5326-5336 S. Greenwood Avenue

South Side
5326 South Greenwood Avenue, Chicago, IL 60615

  • 1 bed – 4 bed
  • Pets allowed

Complete your preferences to get a proper evaluation.

Set Preferences

Property location

5326 South Greenwood Avenue, Chicago, IL 60615

Pricing and availability

Last updated about 4 hours ago
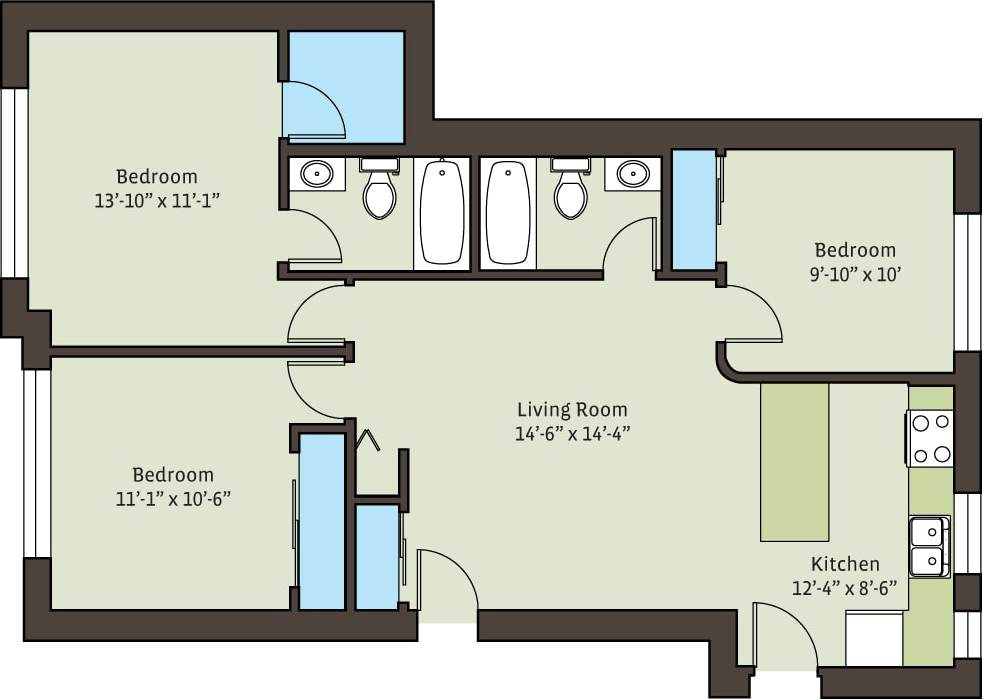
  • 5326-3bd
    • 3 bed
    • ·
      2 bath
    • ·
      881 sqft
    $2,675+
    2
    Starting at
    Units available
    • Unit 5336-313

      Available now

      12 months lease
      Base rent
      $2,675+ mo
    • Unit 5326-102

      Available now

      12 months lease
      Base rent
      $2,675+ mo

Amenities

  • On-site laundry
  • Granite counters
  • Hardwood floors
  • Dishwasher
  • Pet friendly
  • Recently renovated

Property details

Ideally situated between 53rd and 54th Streets, near the center of Hyde Park, this grand courtyard building exemplifies the neighborhoods various architectural influences. Bold, red brick facades mingle with soft grey limestone detailing around the windows, while Mission style peaked roof-lines punctuate the green Spanish-tiled gable roof. A cozy courtyard sits nestled in the middle, ushering light and air into the building and carving out a private garden for residents to enjoy.

Lease length
3-24 months
Application fee
$65
Deposit
None
Pets allowed
Yes
Pet limit
2 pets
Pet restrictions
Breed restrictions.
Pet fee
$250 flat fee
Pet rent
$25 pet pet/ month
Parking
Street parking Parking lot couple of blocks away: $100/month. None.
Income requirement
Must have 2x the rent in total household income (before taxes)
Utilities
Hot Water, Internet, Sewer, Trash, Water

Contact the property

(773) 688-4471