5457-5459 S. Blackstone Avenue
35 photos
  • Pet friendly
  • Studio–4 bed
Base rent from ($1,210) $1,195+ mo

5457-5459 S. Blackstone Avenue

5457 South Blackstone Avenue, Chicago, IL 60615
(773) 570-1393

Complete your preferences to get a proper evaluation.

Set Preferences

Property location

5457 South Blackstone Avenue, Chicago, IL 60615

Pricing and availability

Last updated about 5 hours ago
  • 5457-0bA
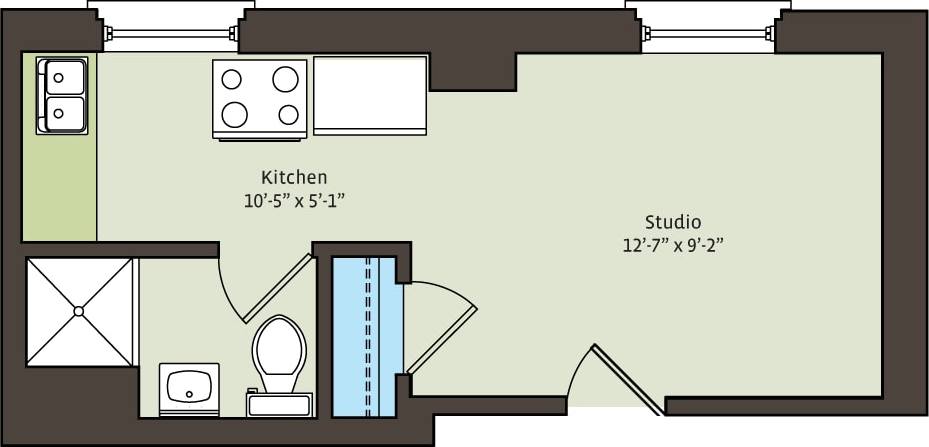
    • Studio
    • ·
      1 bath
    • ·
      260 sqft
    $1,195+
    1
    Starting at
    Unit available
    • Unit 5457-3B

      Apply now

      Avail 3/22/2026

      12 months lease
      Base rent
      $1,210 mo
      Price dropped on 03/17
    • -1%
    • $1,195+ mo

Amenities

  • On-site laundry
  • Hardwood floors
  • Pet friendly
  • Bike storage
  • Range
  • Oven

Property details

Set back from the street, this building welcomes residents up the solid front stairs and past its facade that reflects the clean designs of the Arts and Crafts Movement. The warm brick exterior creates a play between light and shadow, adding visual interest and depth through recessed masonry patterns. Limestone keystones articulate major window openings, and a landscaped lawn provides a spot to relax or absorb neighborhood activities all just a few minutes from Lake Michigan, public transportation and the mix of restaurants and cafes along 53rd Street.

Lease length
3-24 months
Application fee
$65
Pets allowed
Yes
Pet limit
2 pets maximum
Pet fee
$250 per pet
Pet rent
$25/month per pet
Parking
Gated parking: $100/month; Street parking. None.
Income requirement
Must have 2x the rent in total household income (before taxes)
Utilities
Hot Water, Internet, Sewer, Trash, Water

Contact the property

(773) 570-1393