Sunny Logo
sunny
Sign In
Sign Up
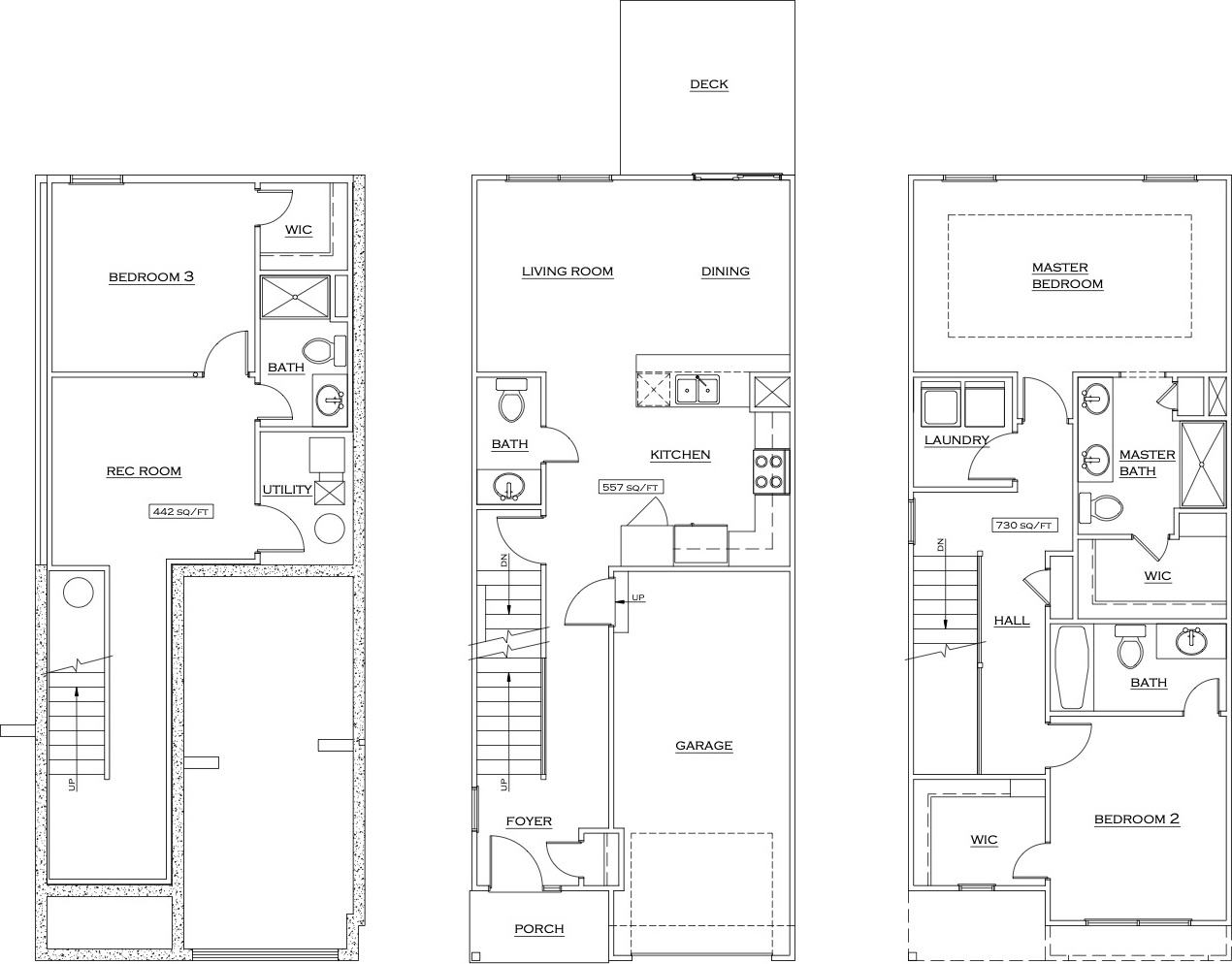
Photos for 8517 Hammond Street Unit 9I
Close
Sign In
Sign Up