Sunny Logo
sunny
Sign In
Sign Up
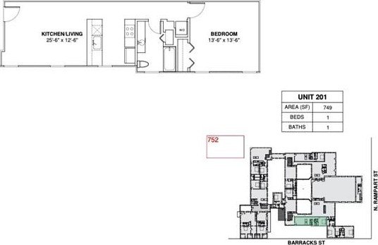
Photos for 1022 BARRACKS Street
Close
Sign In
Sign Up