Sunny Logo
sunny
Sign In
Sign Up
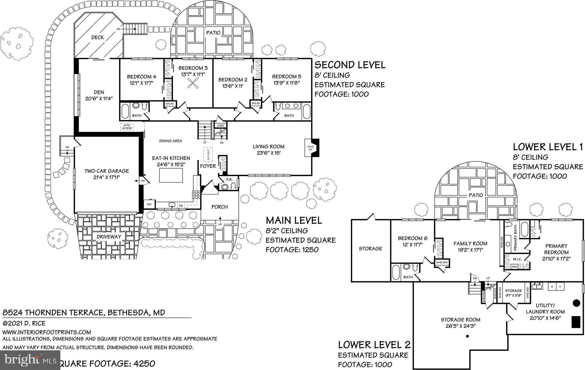
Photos for 8524 THORNDEN TERRACE
Close
Sign In
Sign Up