505 Huron Ave.
505 Huron Ave.
See all photos

505 Huron Ave.

505 Huron Avenue, Port Huron, MI 48060

  • Studio – Studio
  • Parking

Complete your preferences to get a proper evaluation.

Set Preferences

Property location

505 Huron Avenue, Port Huron, MI 48060

Pricing and availability

Last updated 5 months ago

No units available

Amenities

  • Parking

Property details

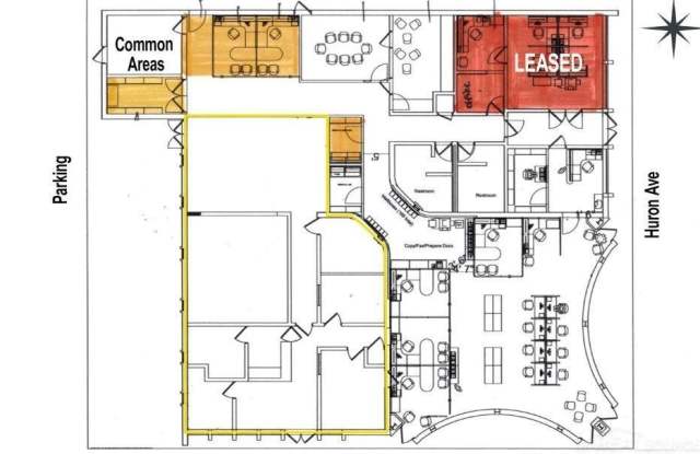
- Currently owner-occupied Accountants Office. Willing to move to the back of the building. - Great downtown location, less than .5 mile to the courthouse - Adjacent to McMorran Place and walking distance to everything downtown Port Huron has to offer - Ample parking in the front and rear of the building.

Pets allowed
Yes
Parking
None, unassigned.
Income requirement
Must have 3x the rent in total household income (before taxes)