Sunny Logo
sunny
Sign In
Sign Up
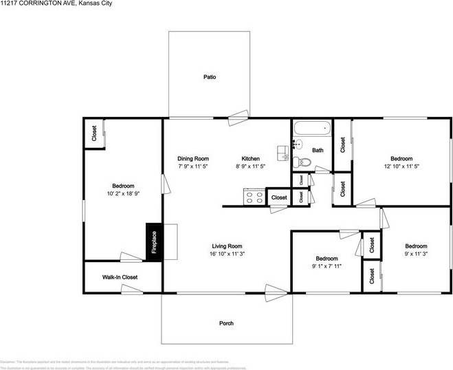
Photos for 11217 Corrington Ave
Close
Sign In
Sign Up