Sunny Logo
sunny
Sign In
Sign Up
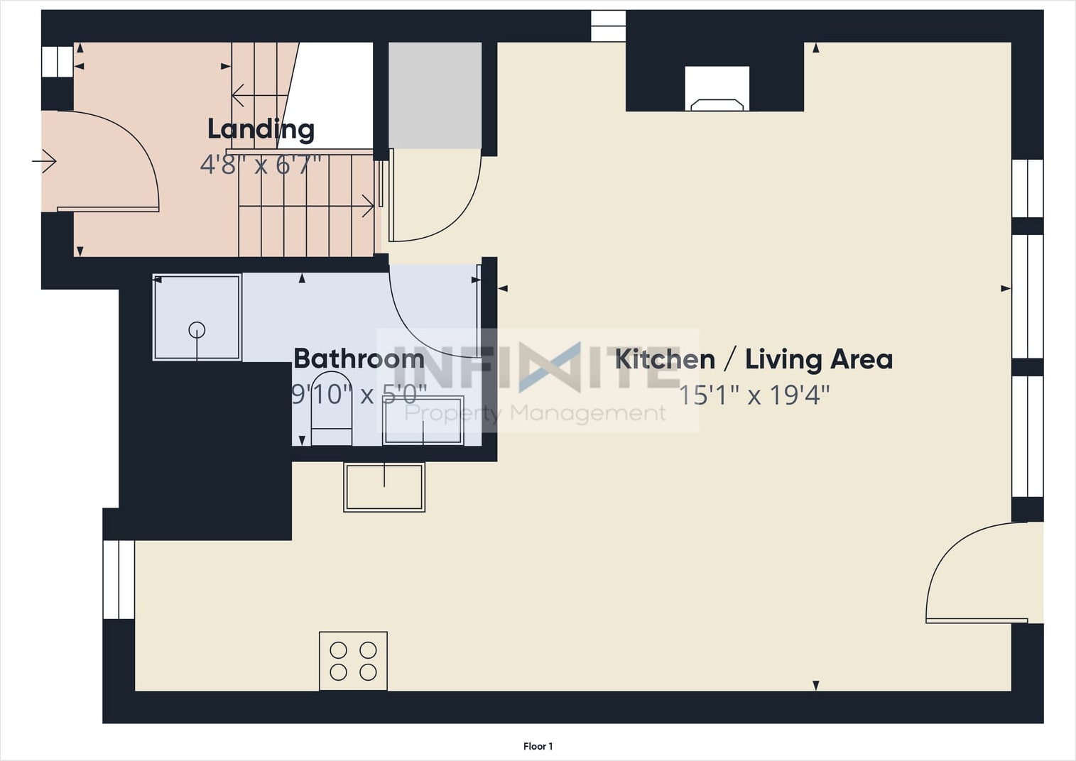
Photos for Comfortable 2 bedroom and 3 bathroom in Big Sky
Close
Sign In
Sign Up