Sunny Logo
sunny
Sign In
Sign Up
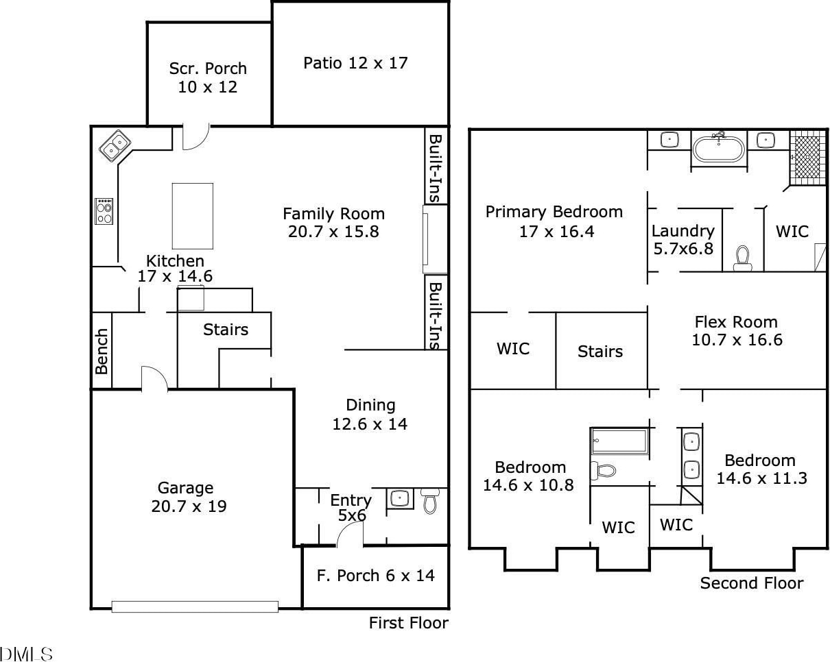
Photos for 409 Morreene Road
Close
Sign In
Sign Up