Sunny Logo
sunny
Sign In
Sign Up
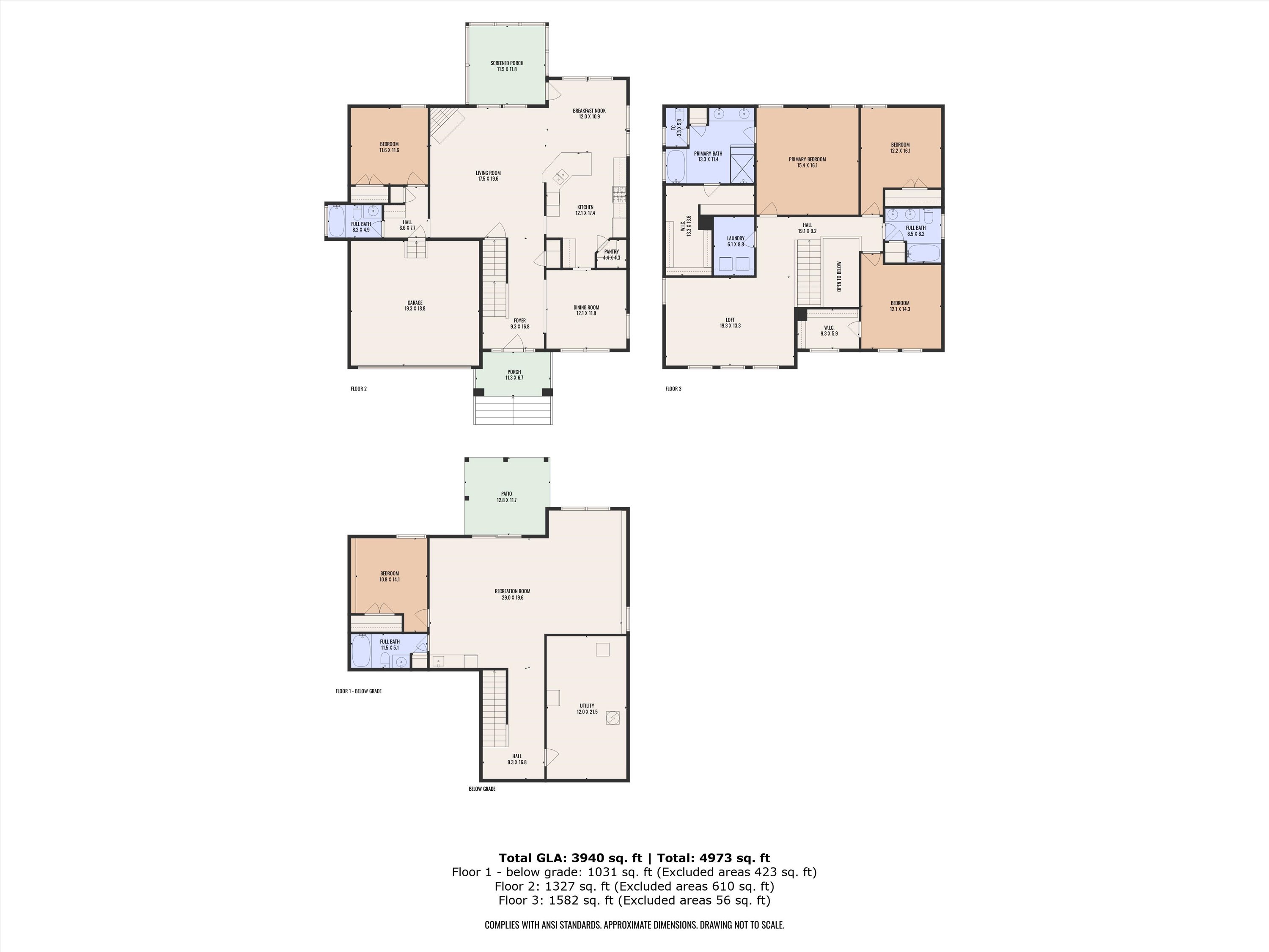
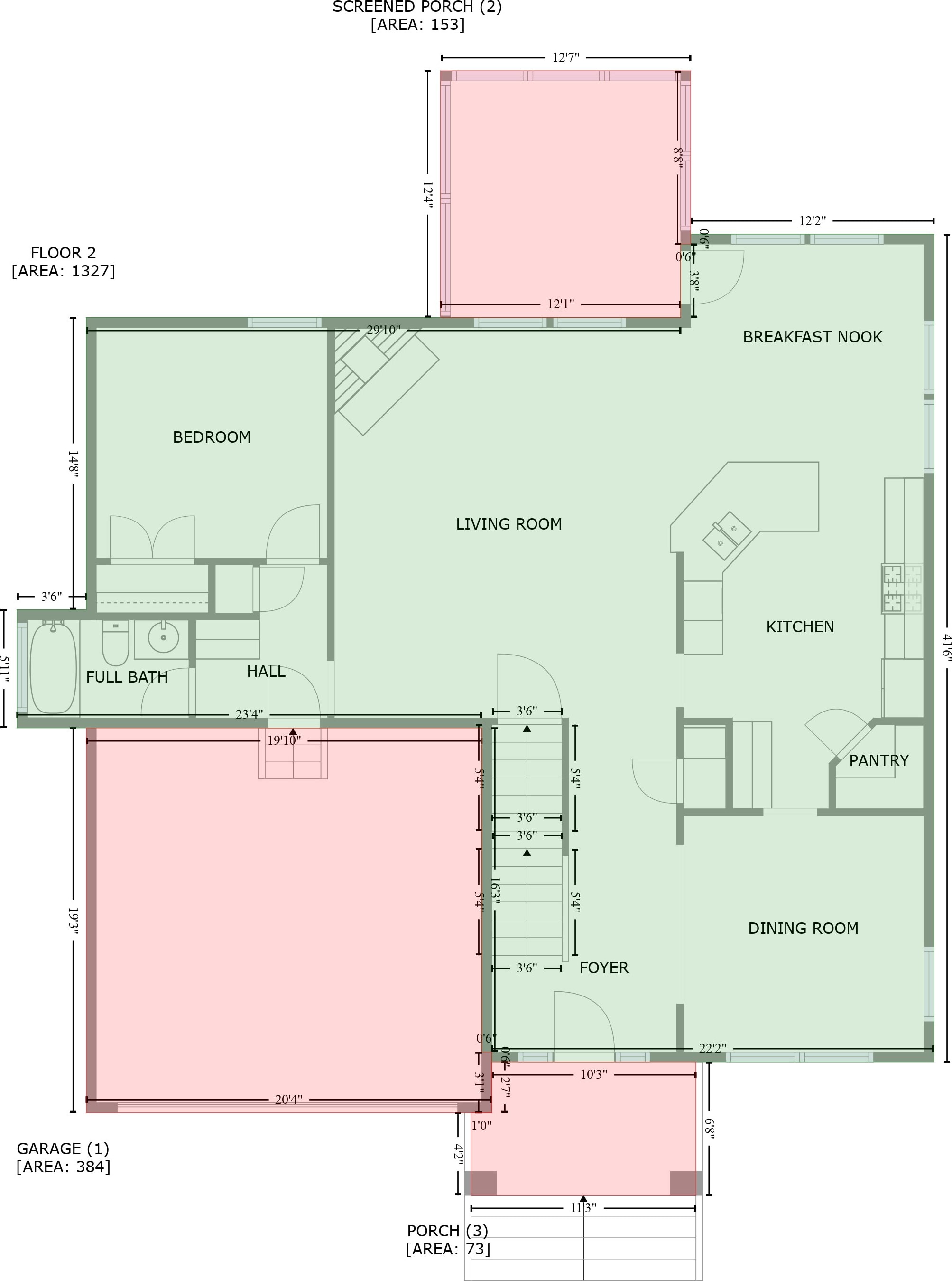
Photos for 4701 Kia Drive
Close
Sign In
Sign Up