Sunny Logo
sunny
Sign In
Sign Up
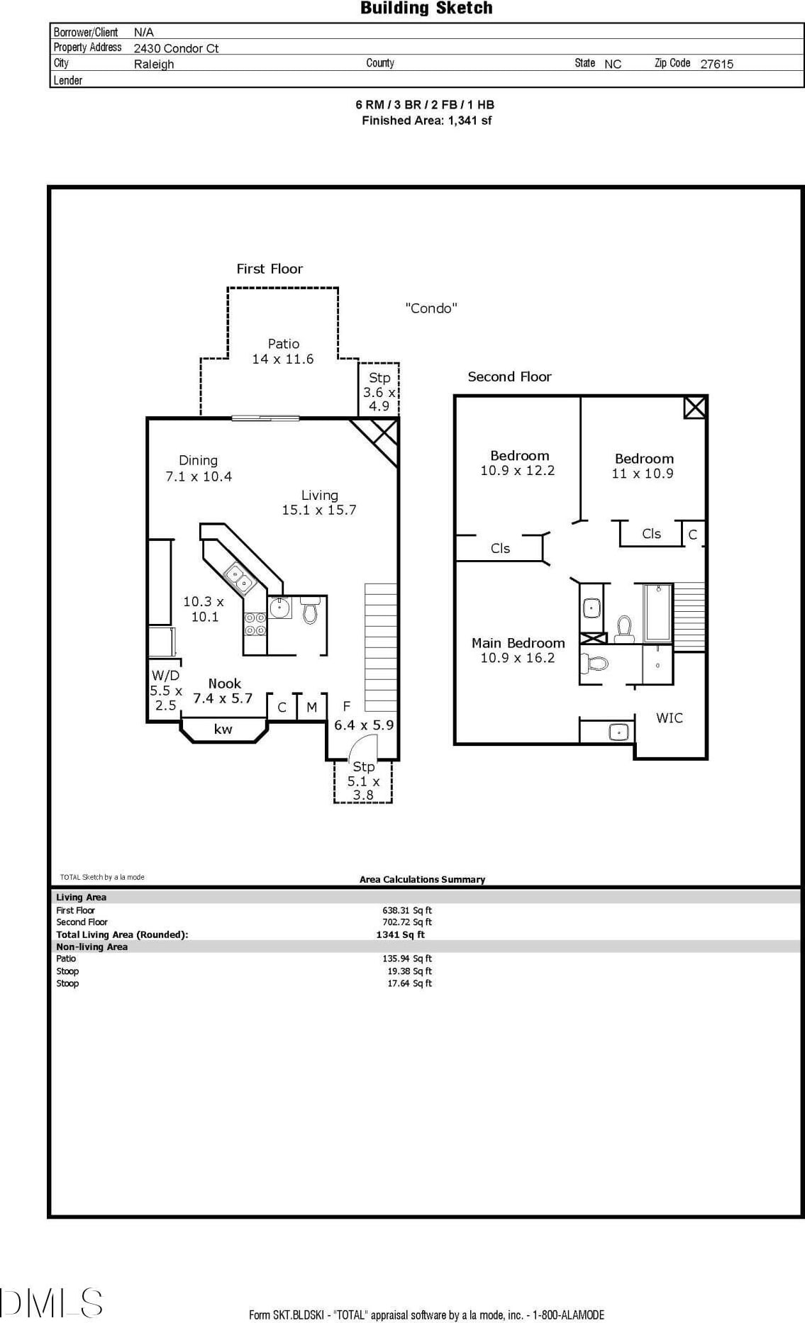
Photos for 2430 Condor Court
Close
Sign In
Sign Up