Sunny Logo
sunny
Sign In
Sign Up
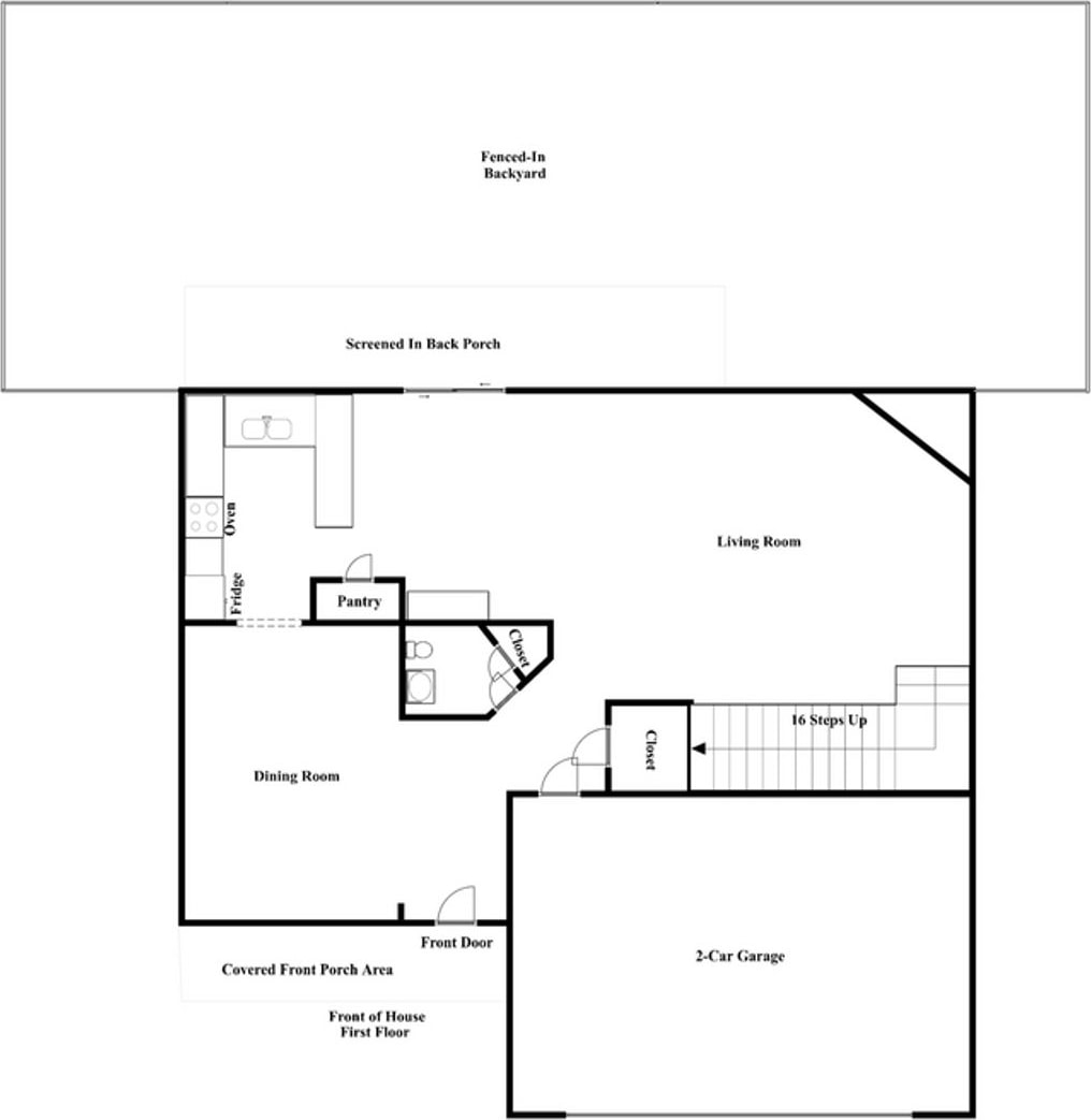
Photos for 3019 N Rocklund Court
Close
Sign In
Sign Up