Terrace Pointe
Terrace Pointe
See all photos

Terrace Pointe

North Hills
425 East Calgary Avenue, Bismarck, ND 58503

  • 1 bed – 3 bed
  • Parking

Complete your preferences to get a proper evaluation.

Set Preferences

Property location

425 East Calgary Avenue, Bismarck, ND 58503

Pricing and availability

Last updated about 3 hours ago
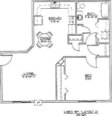
  • 1 Bed 1 Bath
    • 1 bed
    • ·
      1 bath
    • ·
      825 sqft
    $1,123+
    1
    Starting at
    Unit available
    • Unit 3

      Avail 2/20/2026

      12 months lease
      Base rent
      $1,151 mo
      Dropped on 12/04
    • -2%
    • $1,123+ mo

Amenities

  • In unit laundry
  • Patio / balcony
  • Dishwasher
  • 24hr maintenance
  • Garage
  • Air conditioning

Property details

Terrace Pointe is located in a residential area of NE Bismarck that has easy access to main roadways. Enjoy great amenities like in unit laundry, open floor plan, and paid for heat!

Lease length
6-15 months
Application fee
$55 Per Applicant
Deposit
500.0
Pets allowed
Yes
Pet deposit
$300
Pet fee
$55
Pet rent
$40
Parking
Detached garage, open lot. Surface lot, unassigned. Garage lot, assigned.
Income requirement
Must have 3x the rent in total household income (before taxes)
Utilities
Gas, Hot Water

Contact the property

(701) 203-9707