Sunny Logo
sunny
Sign In
Sign Up
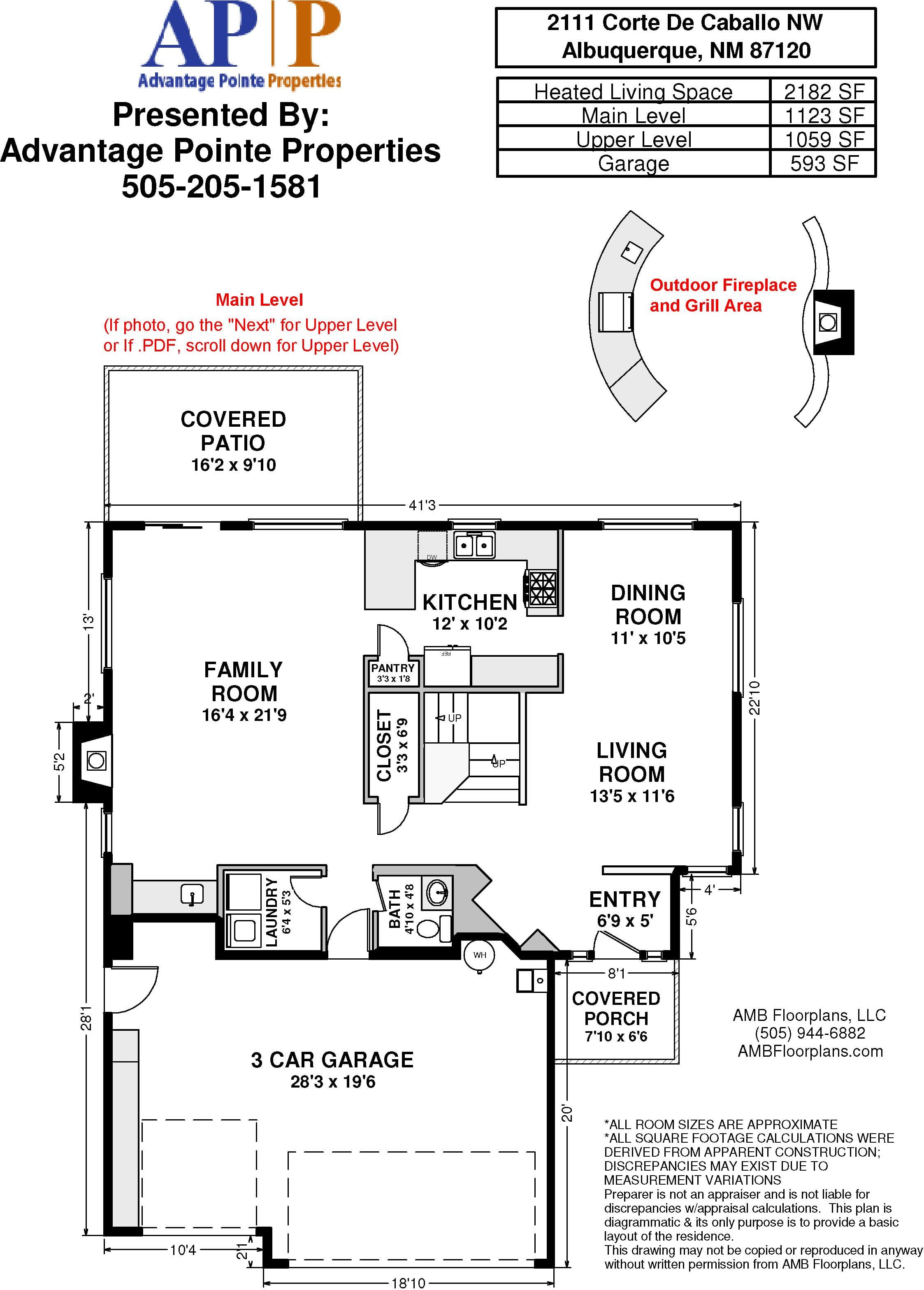
Photos for 2111 Corte De Caballo NW
Close
Sign In
Sign Up