1023 Dana Avenue
1023 Dana Avenue
See all photos

1023 Dana Avenue

North Avondale
1023 Dana Avenue, Cincinnati, OH 45229

  • 4 bed – 8 bed
  • Parking

Complete your preferences to get a proper evaluation.

Set Preferences

Property location

1023 Dana Avenue, Cincinnati, OH 45229

Pricing and availability

Last updated 4 months ago

No units available

Amenities

  • Dishwasher
  • Parking
  • Recently renovated

Property details

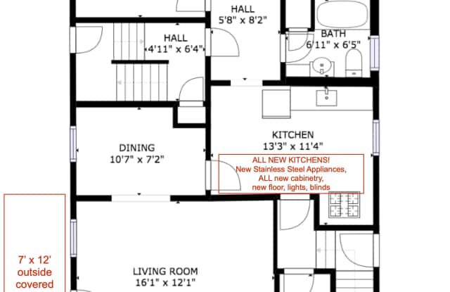
The 2nd & 3rd Floor unit is perfect for roomates or Xavier Students. Immediately adjacent to campus, formerly leased to Xavier Baseball team. Newly Renovated. All new appliances, DISHWASHERS, 2 kitchens, more than 4 bedrooms, OFF-STREET parking, great location. Landlord pays most utilities. Immediate occupancy available!

Deposit
2100.0
Parking
Surface lot.
Income requirement
Must have 3x the rent in total household income (before taxes)