Sunny Logo
sunny
Sign In
Sign Up
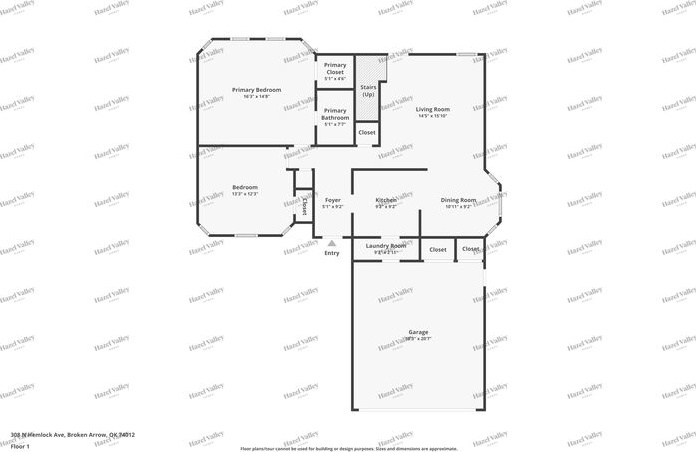
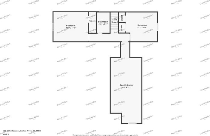
Photos for 308 North Hemlock Avenue
Close
Sign In
Sign Up