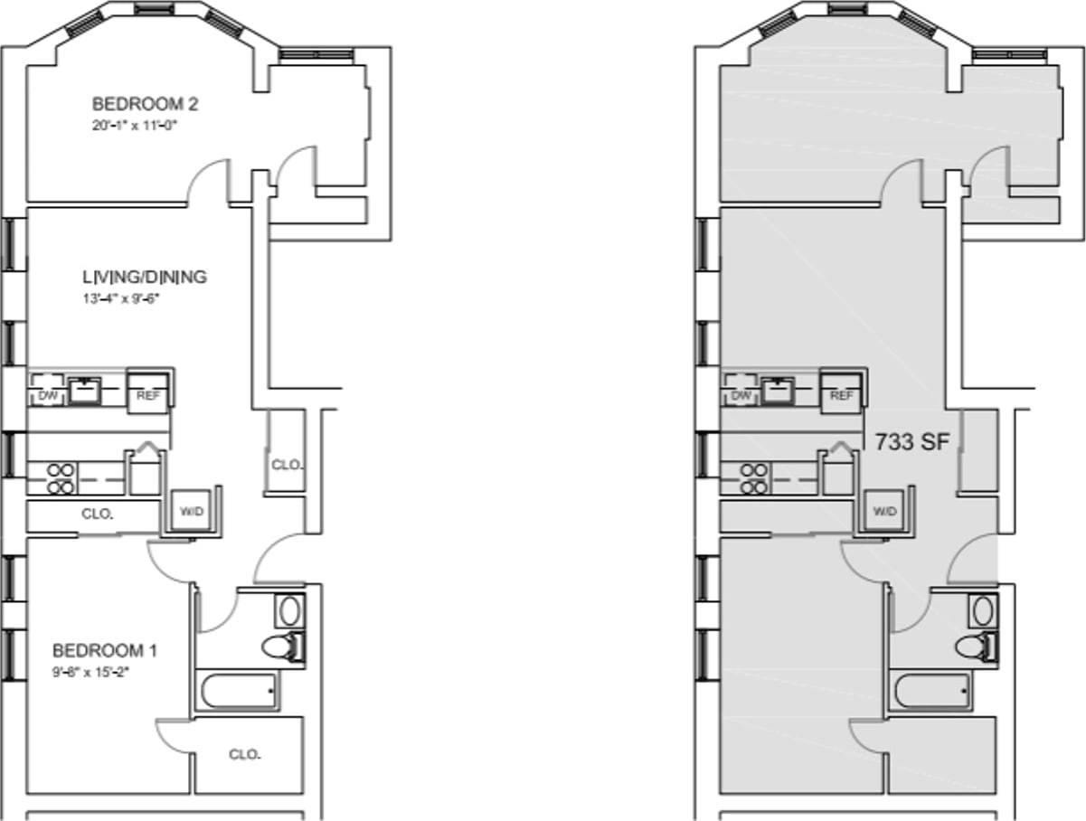
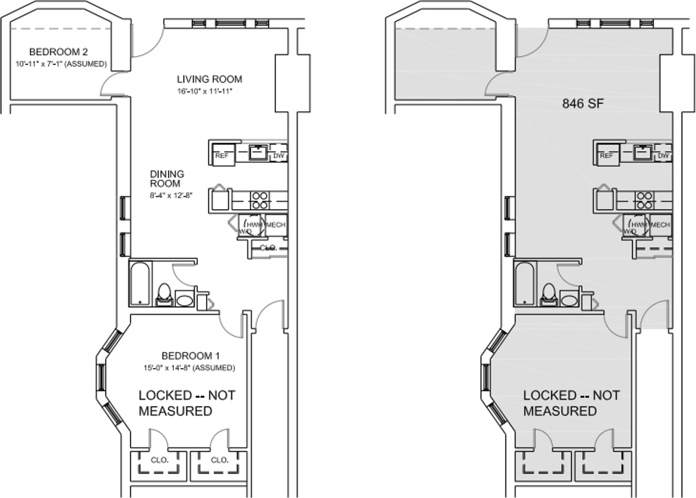
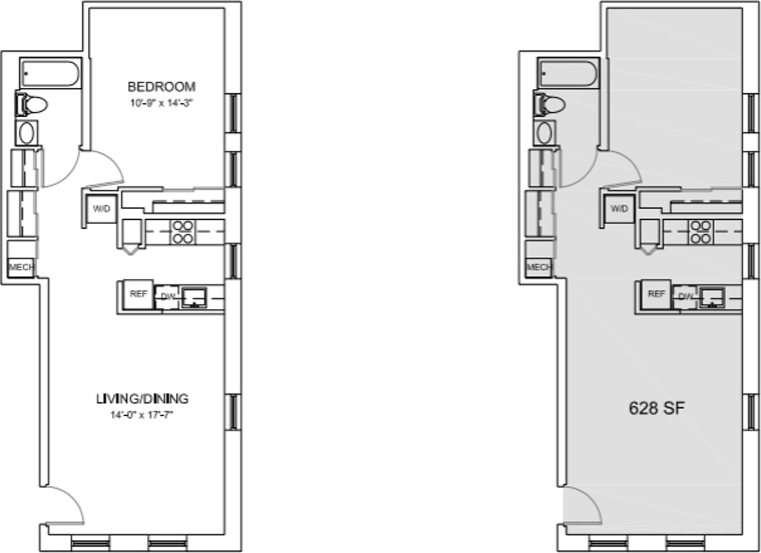
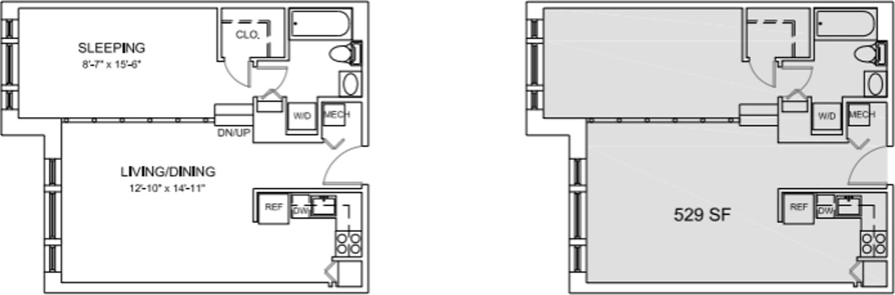
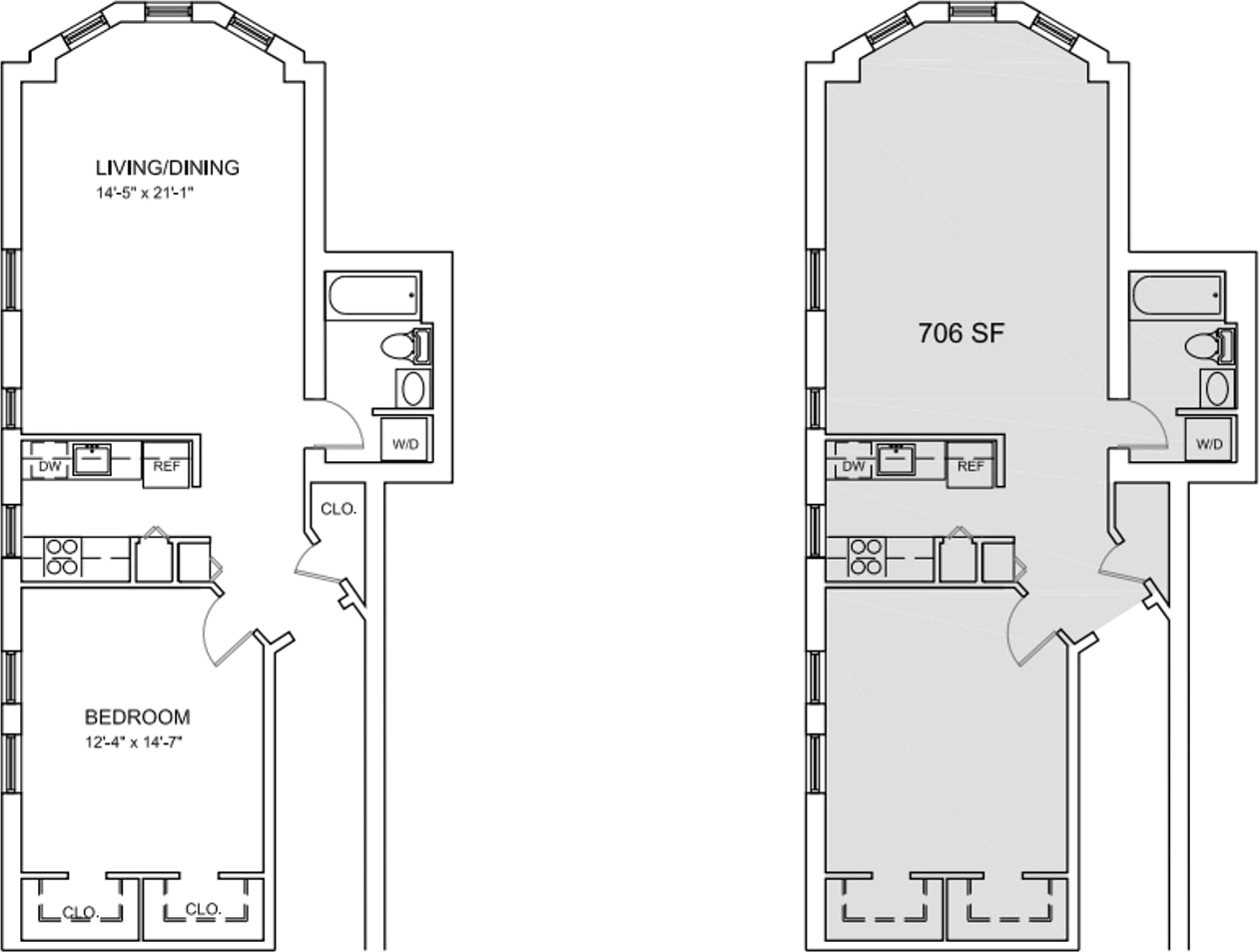
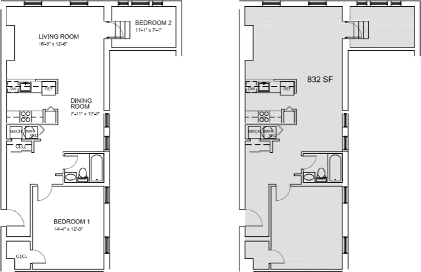
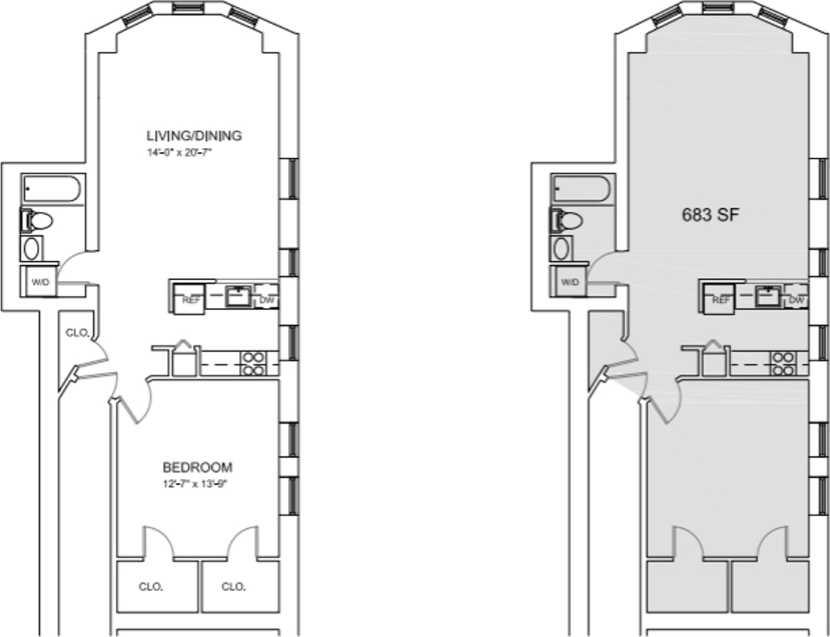
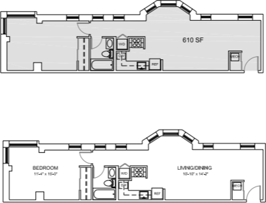
Photos for Carriage House