The Louise Townhomes
The Louise Townhomes
See all photos

The Louise Townhomes

4151 Viridian Village Dr Bld 1, Arlington, TX 76005

  • 2 bed – 3 bed
  • Pets allowed

Complete your preferences to get a proper evaluation.

Set Preferences

Property location

4151 Viridian Village Dr Bld 1, Arlington, TX 76005

Pricing and availability

Last updated about 5 hours ago
  • Julia
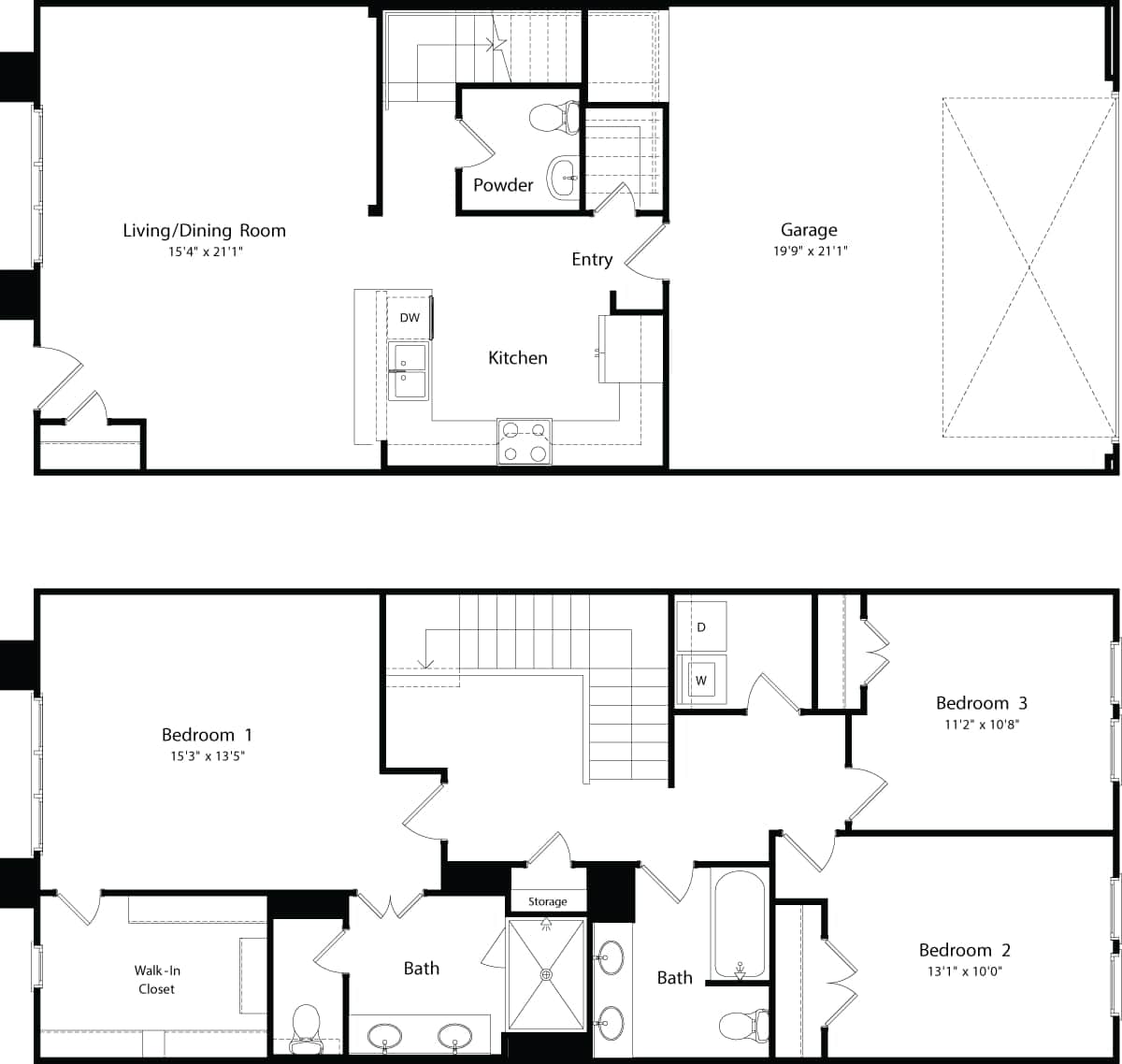
    • 3 bed
    • ·
      3 bath
    • ·
      1663 sqft
    $2,761+
    2
    Starting at
    Units available
    • Unit 702

      Available now

      12 months lease
      Base rent
      $2,771 mo
      Dropped on 12/14
    • -0.4%
    • $2,761+ mo
  • Unit 712

    Avail 3/13/2026

    12 months lease
    Base rent
    $3,416 mo
    Dropped on 12/11
  • -2%
  • $3,346+ mo
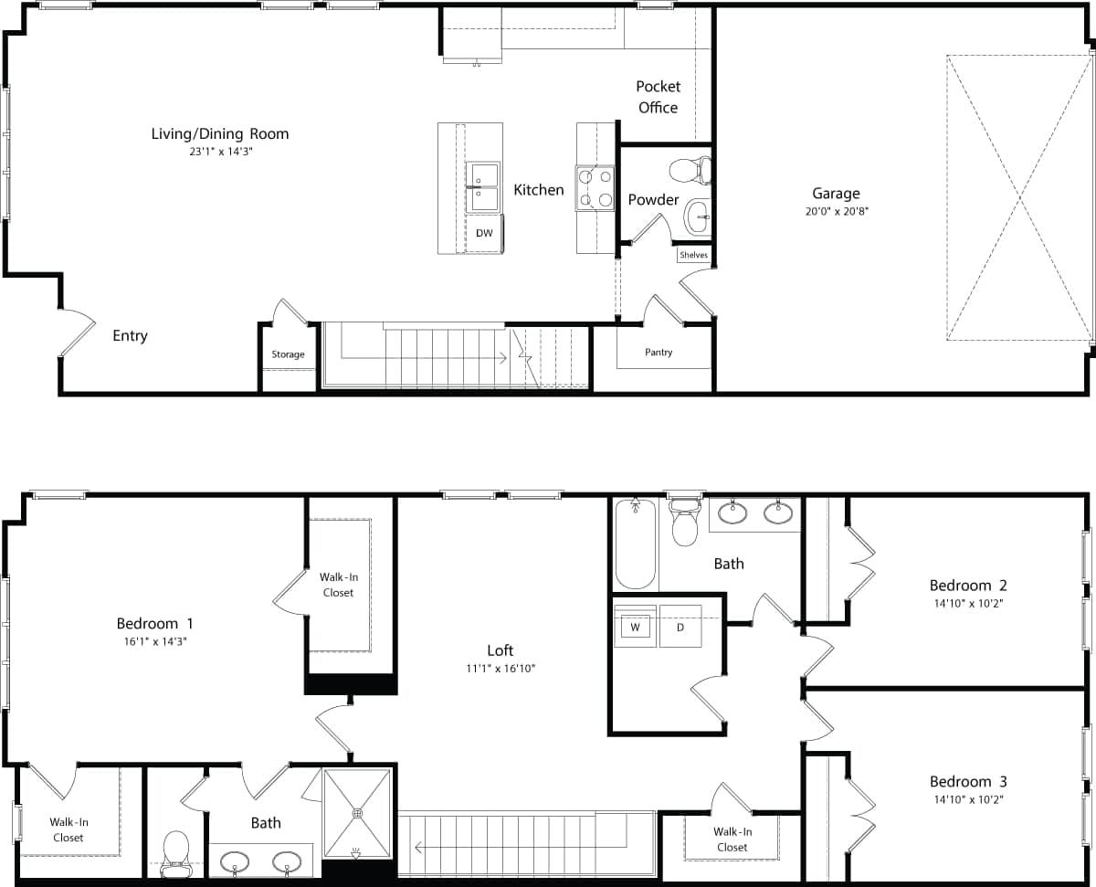
  • Natalie
    • 3 bed
    • ·
      3 bath
    • ·
      1845 sqft
    $2,893+
    2
    Starting at
    Units available
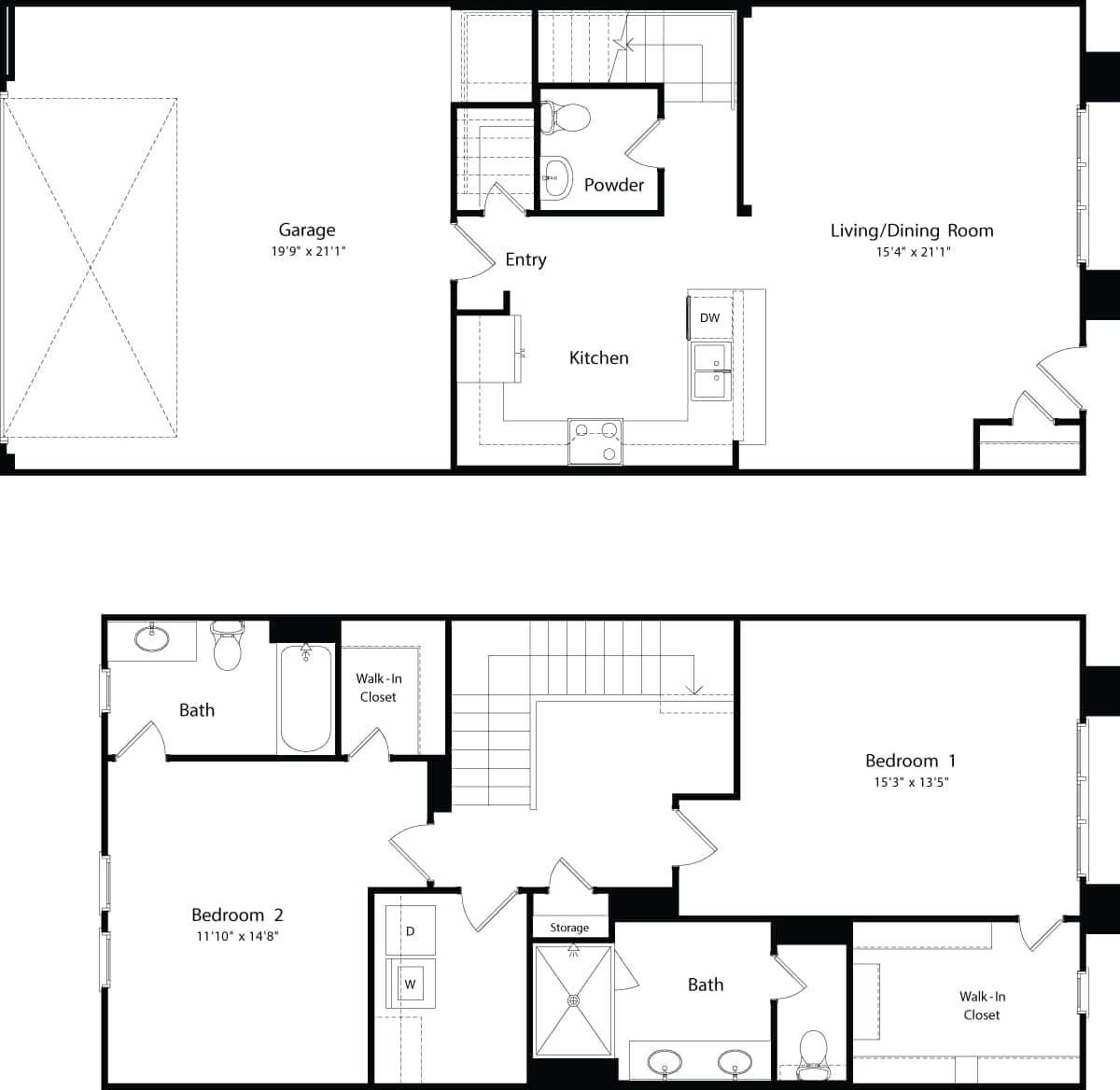
  • Sallie
    • 3 bed
    • ·
      3 bath
    • ·
      2084 sqft
    $3,191+
    1
    Starting at
    Unit available
  • Amenities

    • In unit laundry
    • Golf room
    • Granite counters
    • Pet friendly
    • Garage
    • Stainless steel

    Property details

    Income requirement
    Must have 3x the rent in total household income (before taxes)

    Contact the property

    (918) 918-1073