Sunny Logo
sunny
Sign In
Sign Up
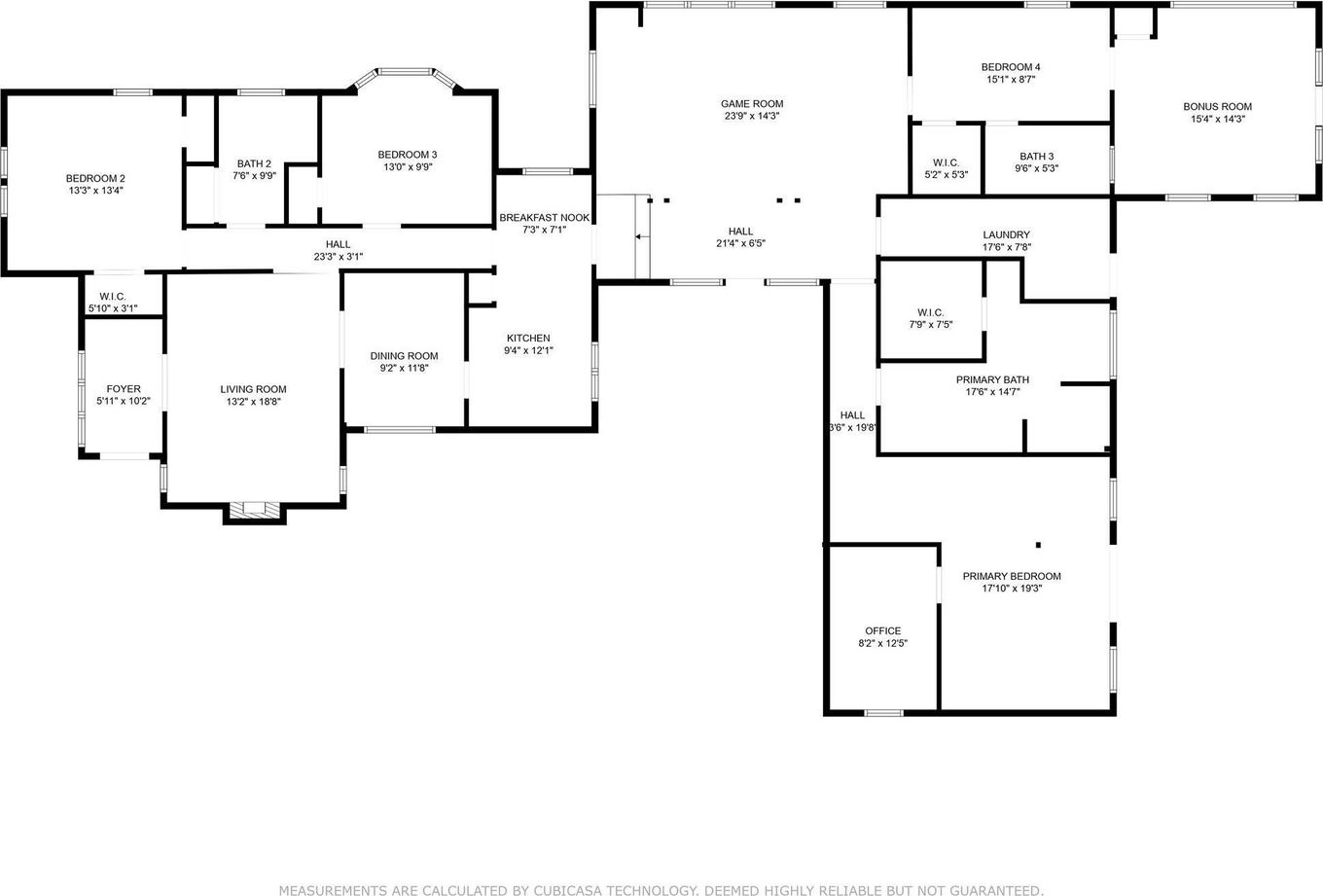
Photos for Amazing Historic 1940's Home in Original Cleburne- 4 Bed- 3 Bath w/ Multiple Living Areas- 76033
Close
Sign In
Sign Up