Sunny Logo
sunny
Sign In
Sign Up
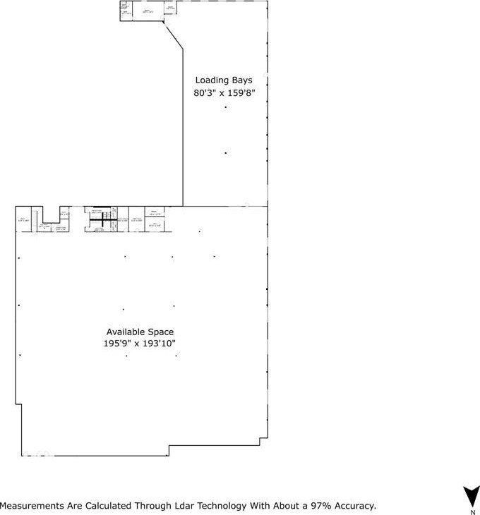
Photos for 1001 ED RUTHERFORD Road
Close
Sign In
Sign Up