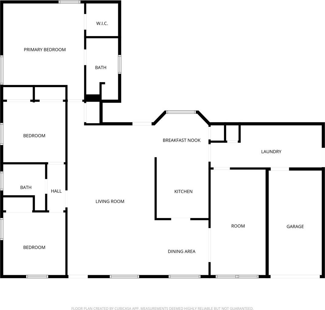
Photos for Water Paid!