Sunny Logo
sunny
Sign In
Sign Up
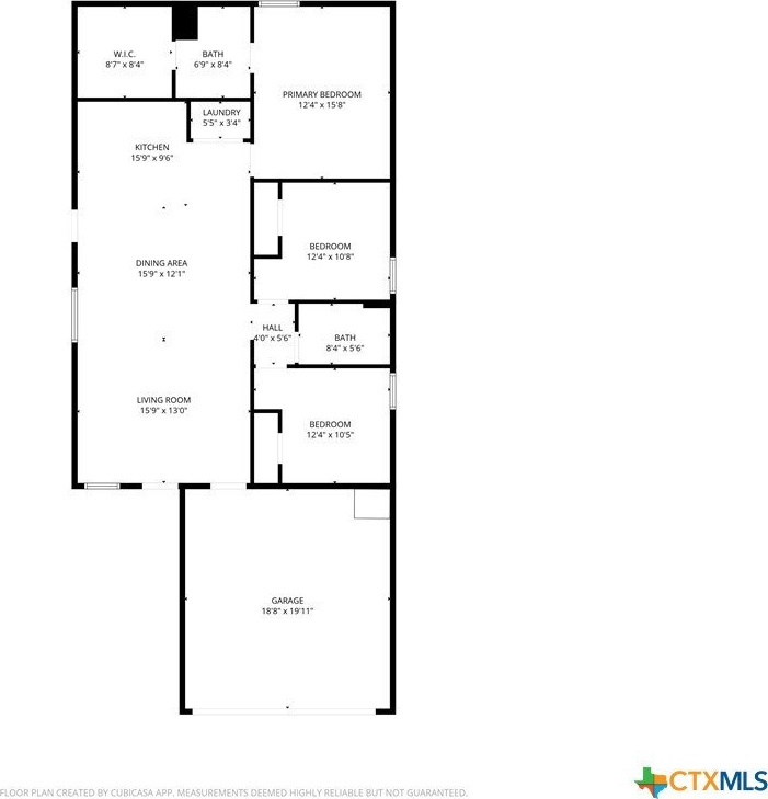
Photos for 313 Soapstone Pass
Go back
Sign In
Sign Up
Base rent from
$0+ mo
313 Soapstone Pass