Sunny Logo
sunny
Sign In
Sign Up
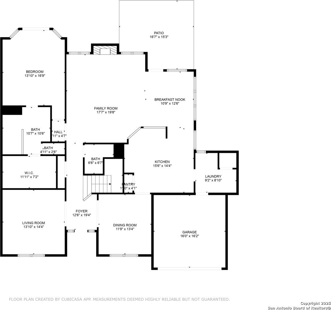
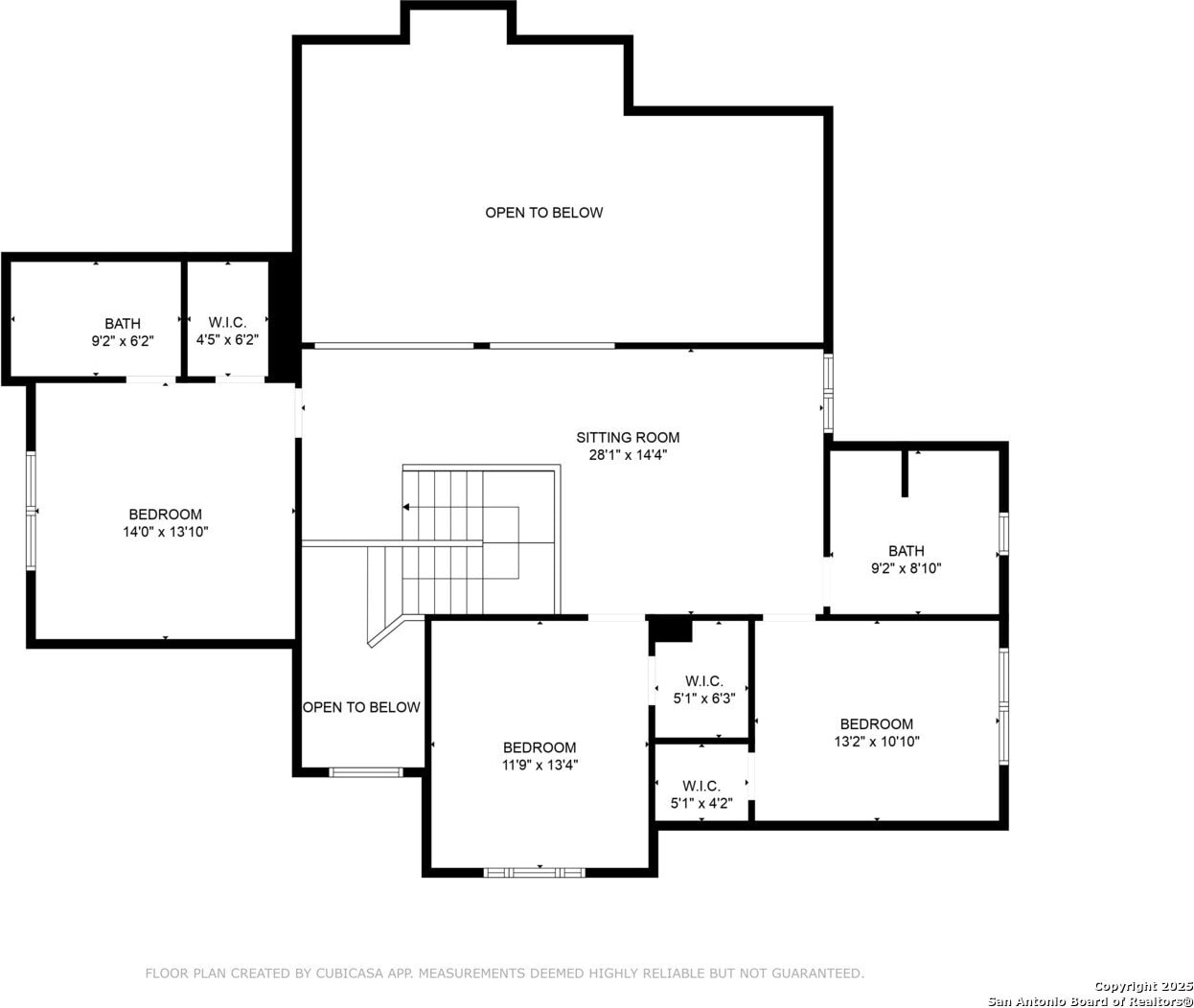
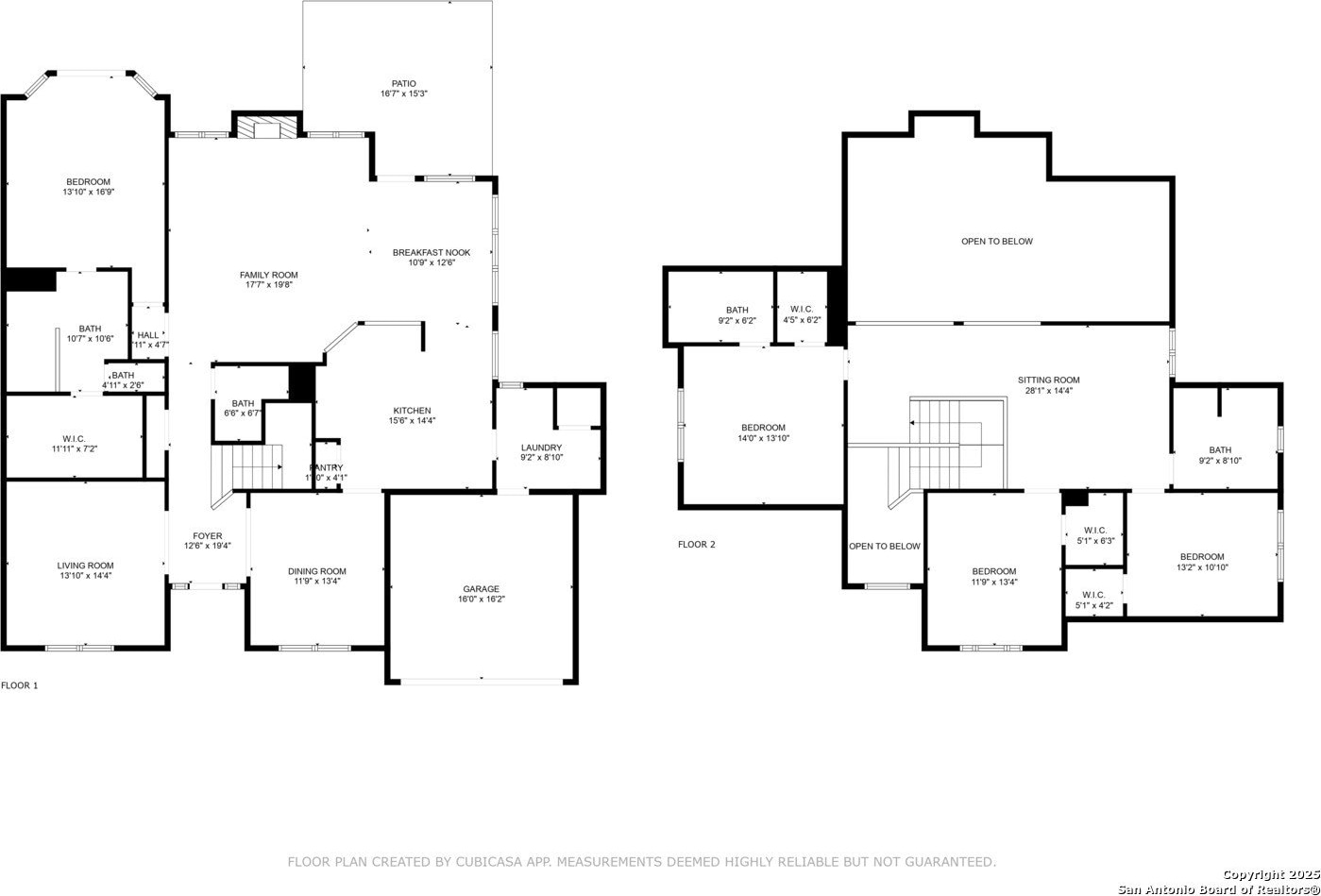
Photos for 1603 DOE PARK
Close
Sign In
Sign Up