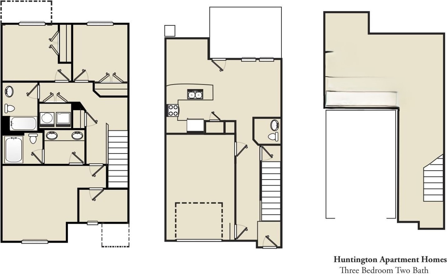
Photos for Huntington