19th & Mercer
19th & Mercer
See all photos

19th & Mercer

Capitol Hill
526 19th Avenue E, Seattle, WA 98112

  • 1 bed – 2 bed

Complete your preferences to get a proper evaluation.

Set Preferences

Property location

526 19th Avenue E, Seattle, WA 98112

Pricing and availability

Last updated about 2 hours ago
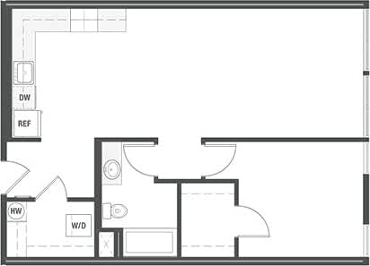
  • 2x2 B
    • 2 bed
    • ·
      2 bath
    • ·
      917 sqft
    $3,299+
    1
    Starting at
    Unit available
    • Unit 201

      Available now

      12 months lease
      Base rent
      $3,550 mo
      Dropped on 11/18
    • -7%
    • $3,299+ mo

Amenities

  • In unit laundry
  • Patio / balcony
  • Hardwood floors
  • Dishwasher
  • Pet friendly
  • Garage

Property details

One-time $1000 move-in special! Limited-time offer. Enjoy easy living in a sophisticated neighborhood close to Seattle’s best parks, restaurants, and urban nightlife. Bus service to downtown is right outside your door, and the property has easy access to the 520 bridge. Step outside for a BBQ in the courtyard, grab some award-winning cookies at Hello Robin, pop out for a drink at Cone & Steiner, or brunch at Bounty Kitchen. Just outside the buzz of Pike/Pine but close enough to reap the rewards.

Pets allowed
Yes
Pet limit
2
Pet restrictions
Please refer to breed restriction list in application packet.
Pet deposit
200.00
Pet fee
0.00
Pet rent
$50
Income requirement
Must have 2.5x the rent in total household income (before taxes)

Contact the property

(206) 299-1581