Sunny Logo
sunny
Sign In
Sign Up
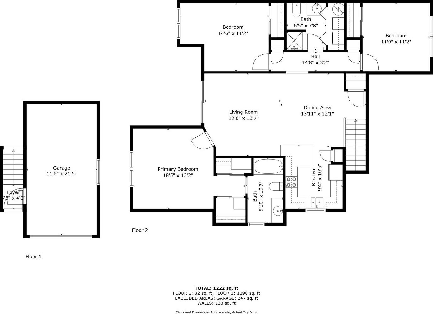
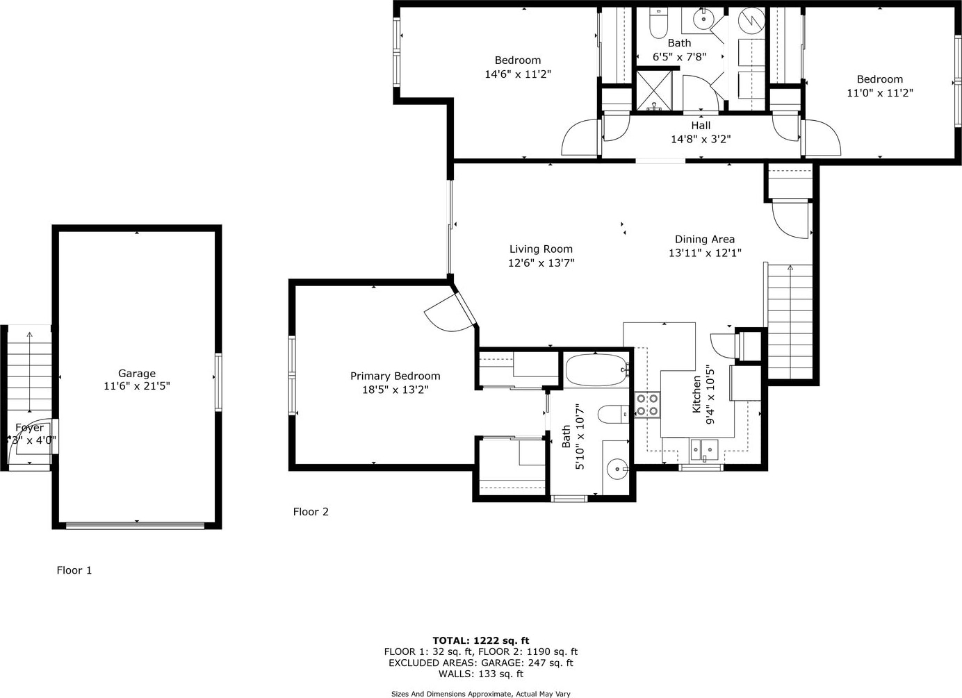
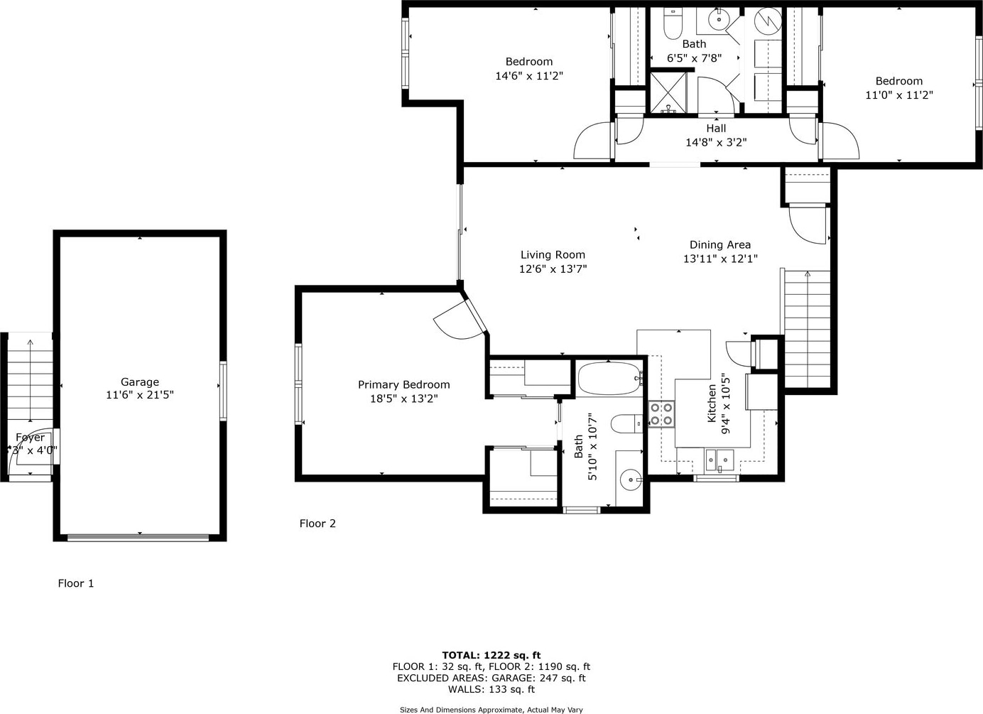
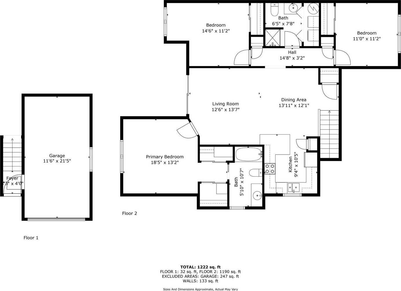
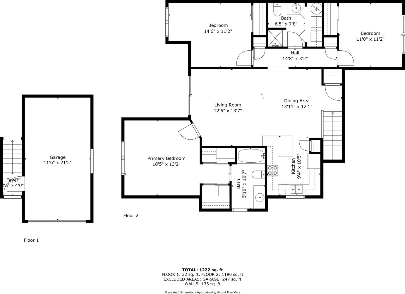
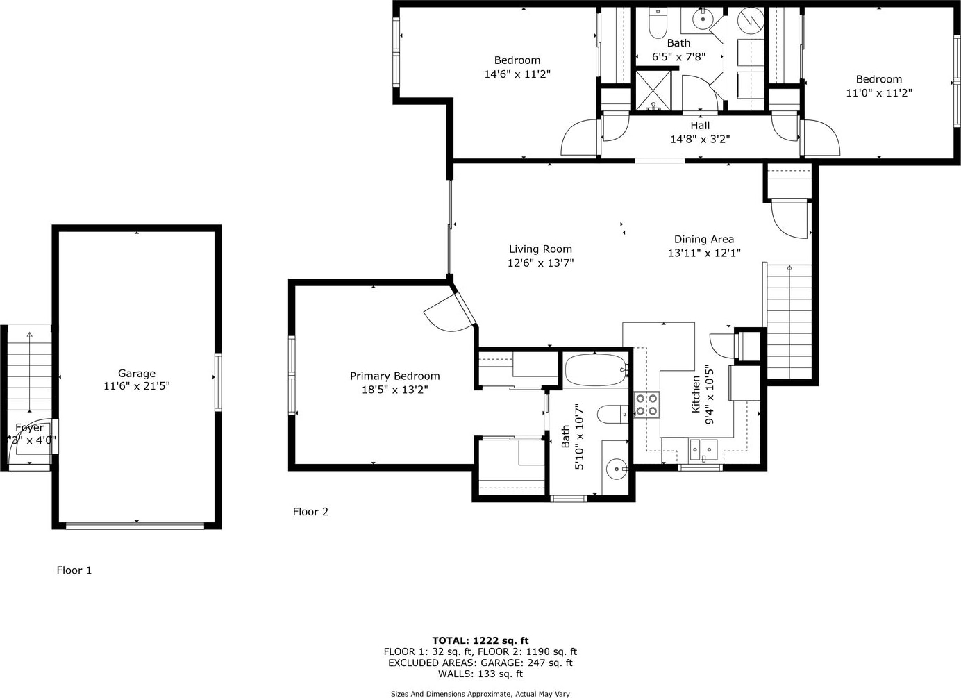
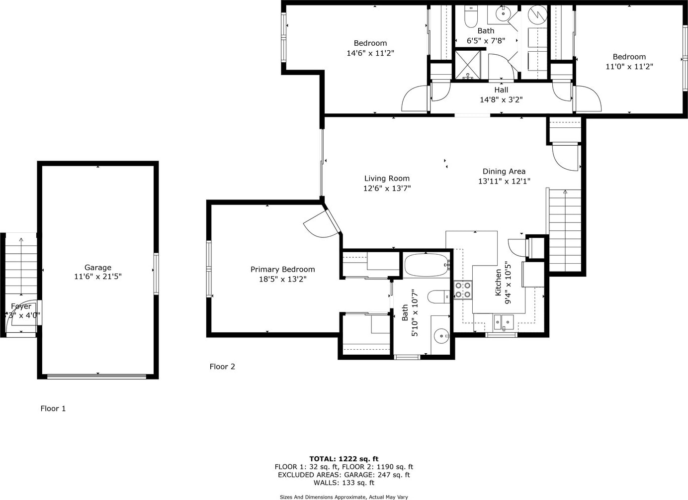
Photos for 3121 Forest Run Ct.
Close
Sign In
Sign Up